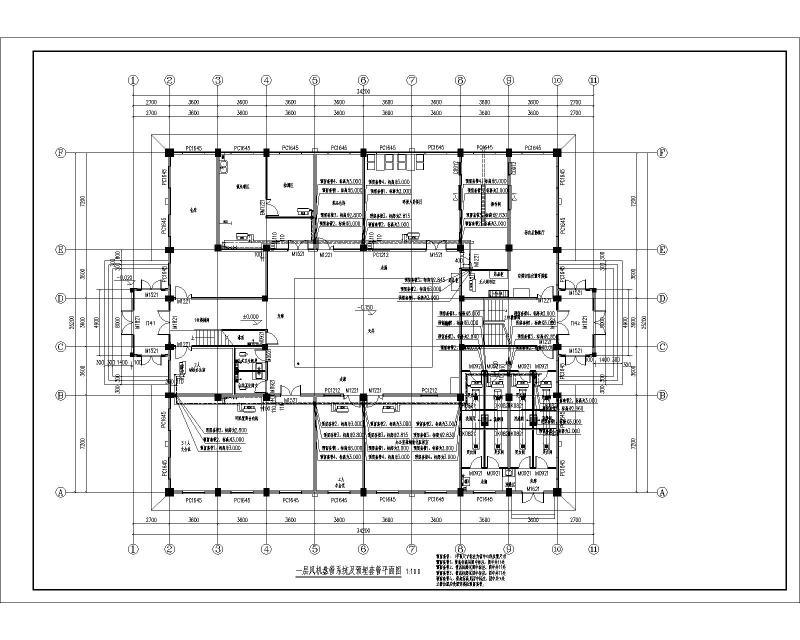
环保综合楼(内涵负荷表)_CAD
- 发布时间:2021-05-14
- 评论次数:0
- 浏览次数:0
- 文件大小:1.3 MB
- 收藏次数:0
-
文件名称:
附件-996095975958785580.zip
相关下载
- 多层宿舍楼建筑暖通CAD初设大样图_内涵负荷表
- 空调负荷估算表.xls
- 生活区综合楼空调设计(内含负荷表)_CAD
- 冷负荷、建筑空调负荷及新风负荷指标表.xls
- 空调区冷热负荷计算表.xlsx
- 冷库冷负荷计算表.xls
- [CAD]环保局综合楼水电图纸.dwg
- 桥架电气布置图纸(电负荷表)()
- 养殖楼功能区(内含负荷表)_CAD
- 空调负荷、通风及水利计算表.xls
- 热负荷及散热器计算表.xls
- 建筑物制冷供暖负荷表.xls
- 某酒店发电机负荷计算表.xls
- 9层环保监测综合楼装修电气CAD图纸(二类建筑)
- 9层环保监测综合楼装修电气CAD施工图纸
- 旧村改造商办楼电气CAD施工图纸(负荷计算表).dwg
- 环保施工方案.doc
- 节能环保施工方案
- 施工环保措施计划.doc
- [CAD]22层综合楼电气设计图纸(一级负荷)
全部评论
评论网友评论仅友表达个人看法,并不表明本站同意其观点,不得发布违反法律法规的内容!
