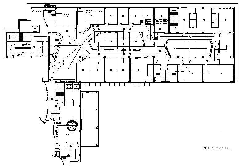
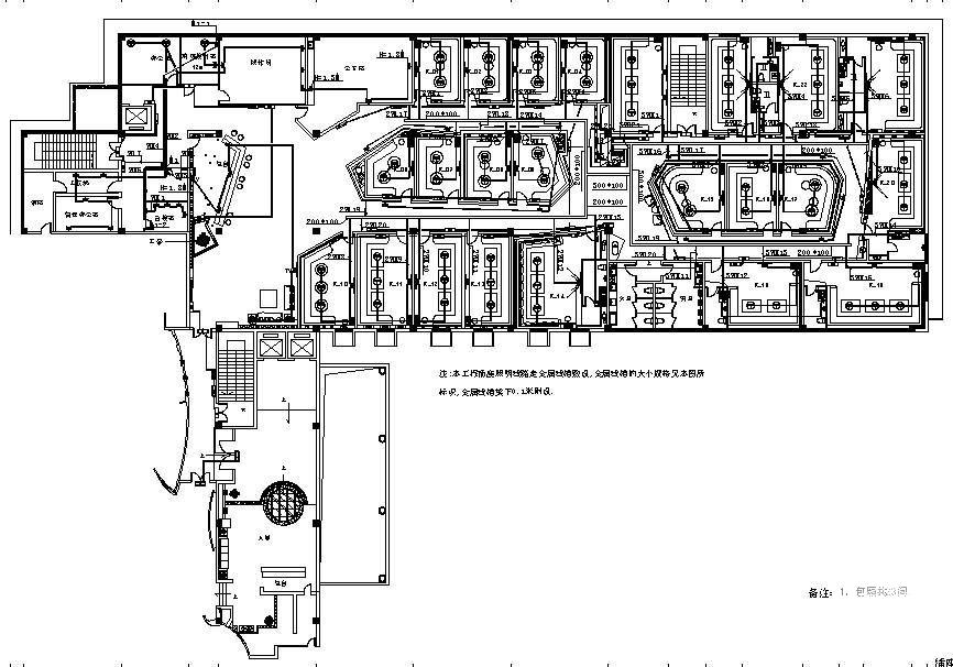
俱乐部KTV室装修电气CAD施工图纸
- 发布时间:2021-05-15
- 评论次数:0
- 浏览次数:0
- 文件大小:0.56 MB
- 收藏次数:0
-
文件名称:
附件-996095968698557576.rar
ktv装修施工图下载
- 量贩式KTV电气施工CAD图纸
- 一份酒店ktv室内装修电气设计CAD施工图纸
- 一份酒店KTV装修电气系统CAD施工图纸
- 酒店ktv室内装修电气CAD施工图纸(dwg格式)
- 俱乐部电气施工CAD图纸(2017)
- 一份酒店4层KTV装饰装修工程电气CAD图纸
- 办公室装修电气CAD图纸
- 高尔夫俱乐部消防报警电气CAD图纸
- 办公室装修工程电气CAD施工图纸
- 两层高尔夫俱乐部电气CAD施工图纸
- 国内接待室装修电气CAD图纸
- 办公室装修电气CAD图纸(dwg)
- 办公楼会议室装修电气CAD图纸
- ktv消防CAD施工图纸.dwg
- 单层会所俱乐部建筑施工CAD图纸
- 3层KTV工程电气CAD施工图纸(现代中式)
- 3层KTV包房强电CAD施工图纸(电气照明)
- 酒店客房带KTV电气CAD施工图纸(联动控制系统)(dwg)
- 3层KTV工程电气设计CAD施工图纸(TN-S)
- 海某高档KTV装修工程施工组织设计cad
全部评论
评论网友评论仅友表达个人看法,并不表明本站同意其观点,不得发布违反法律法规的内容!
