18层住宅电气施工CAD图纸

一 设计依据

1.建筑专业提供的条件图;

2.建设单位提供的设计要求;

3.暖通与给排水专业提供的工艺要求及用电设备容量;

4.国家现行有关设计规范.

二 项目概要

该项目为点式住宅楼,地下一层,地上十八层,顶层附设有电梯机房和水箱间.为二类高层建筑,剪力墙结构.

三 设计范围

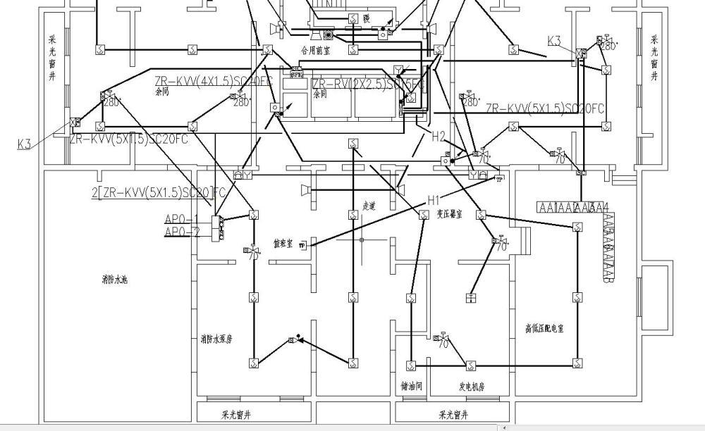
楼内照明、高低压电力供配电、防雷保护、接地保护、消防、有线电视、电话、对讲系统.

四 电源及配电方式

1.负荷等级:该项目应急照明、消防电梯、正压风机等消防用电为二级负荷,其余为三级负荷.

2. 供配电系统 :由开闭所埋地引来10KV高压线一路,在地下室设高低压配电室低压柜分别作为照明动力主电源.在地下室设发电机一台作为二级负荷的备用电源.

3.电力配电系统 :二级负荷均采用两路电源供电,供电末端设双电源互投箱,由此向用电设备配电.

4.照明系统:a.由低压配电柜放射式引出住宅照明配电干线至各层电表箱,再由此向本层各户配电.户内设开关箱,照明和插座分回路配电.b.楼梯间应急照明选用自带蓄电池灯具.延熄时间不少于30min .

五 设备.导线选型及敷设方式:

1.电气设备选型及安装方式详见"图例及主要设备材料表"以及对应系统图.

2.电源进线选用交联铠装电缆(YJV22-10KV)直埋地引入,入户穿钢管保护.楼内照明.动力干线地下室段由低压配电室穿钢管埋地敷设至电气竖井后垂直引上至各用电点.

3.楼内除正常照明配电干线选用交联电缆配合穿刺线夹外其它正常配电干线选用交联聚乙烯绝缘电力电缆,消防线路采用阻燃型交联电力电缆,支线选用铜芯聚氯乙烯绝缘导线(BV-750/450V型),配电支线均穿钢管沿墙.顶.地板暗敷设.BV2.5m%%142导线穿管管径为2~3根SC15,4~6根SC20.插座线为BV(3X4)SC20.

六 防雷保护

1.本建筑属三类防雷建筑物,相应采取防直击雷.雷电波侵入和等电位保护措施 .

2.采用%%c12镀锌圆钢沿屋顶女儿墙四周明敷.屋面暗敷构成不大于20X20M或24X16M的网格,作为防雷接闪器;利用剪力墙内主筋(不少于二根主筋)作为防雷引下线,利用基础钢筋网作为防雷接地极,要求屋顶不同标高处避雷带相互焊接,接闪器、引下线、接地极之间应可靠焊接,上下构成电气通路 .

3.在防雷引下线靠近建筑外圈的位置,距离室外地坪0.5M处预留测试点,并在对应的室外埋深1.0M处由被利用作为引下线的钢筋上焊出一根%%c12镀锌圆钢,伸向室外.

4.所有进出建筑物的各种金属管道、电源电缆金属外皮、穿线钢管外皮等应在进出处与接地装置连接,以防雷电波侵入 .

5.本建筑所有屋顶外露的金属构件等均须与防雷装置可靠连接.

低压配电系统图

高压配电系统图

配电箱系统

弱电平面图

照明


以下是附件的其中一部分截图,共5张,您也可以 搜索 更多您想要的资源
  • 住宅电气施工图纸 - 1
    住宅电气施工图纸 - 1
  • 住宅电气施工图纸 - 2
    住宅电气施工图纸 - 2
  • 住宅电气施工图纸 - 3
    住宅电气施工图纸 - 3
  • 住宅电气施工图纸 - 4
    住宅电气施工图纸 - 4
  • 住宅电气施工图纸 - 5
    住宅电气施工图纸 - 5
以上是部分截图,请下载附件后查看完整高清内容
网站首页  |  关于我们  |  联系方式  |  帮助中心  |  免责声明  |  广告服务  |  网站留言  |  违规举报  | 
本站所有内容均由网友自主分享,仅供学习和参考,如有侵权内容或者违法行为,请及时联系站长删除。