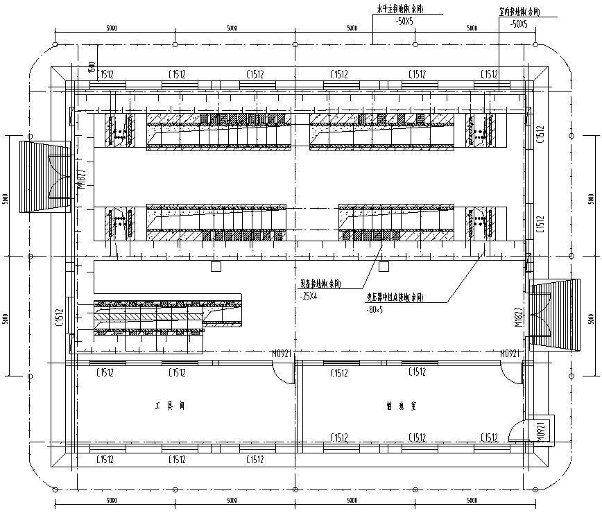
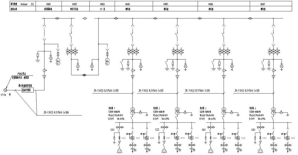
10KV变配电工程CAD图纸
- 发布时间:2021-05-15
- 评论次数:0
- 浏览次数:0
- 文件大小:1 MB
- 收藏次数:0
-
文件名称:
附件-996099569059799779.dwg
工程电工图纸下载
- 10kv变配电站电气设计CAD施工图纸(低压系统)
- 小区高低压配电CAD图纸(10kv变配电系统)
- 小型加工工厂电气CAD施工图纸(10kv变配电系统)
- 10KV变配电室CAD图纸(锅炉房改造)(dwg)
- 10kV变电所变配电智能系统标准CAD图纸
- 针织工厂10kV变配电室工程cad平面图
- 某大楼10KV变配电工程施工组织设计.doc
- 某大楼10KV变配电工程施工组织设计.doc
- 10kV变配电工程施工组织设计.doc
- 某大楼10KV变配电工程施工组织设计.doc
- 办公10KV变配电工程施工组织设计.doc
- 10kV变配电工程施工方案.doc
- 10Kv配电工程图纸cad平面布置图
- 医院配电工程图纸(10kV),平面布置图
- 5层知名高校教学楼强弱电CAD施工图纸(变配电、人防)(TN-S)(10kv变配电系统)
- 大型工业项目强电系统电气施工CAD图纸(完整变配电系统)(柴油发电机房)(TN-S)(10kv变配电系统)
- 10KV高压柜XGN2一次系统CAD图纸(10kv变配电系统)
- 10KV农村电网配网改造工程竣工CAD图纸(架空线路)(10kv变配电系统)
- 一份10KV变配电所高低压配电系统设计CAD图纸
- [CAD]10KV变配电工程设计方案设计图纸,(变压器安装)
全部评论
评论网友评论仅友表达个人看法,并不表明本站同意其观点,不得发布违反法律法规的内容!
