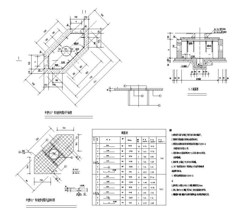
锂离子电池正极材料生产线动力配电施工大样图cad平面图
- 发布时间:2021-05-18
- 评论次数:0
- 浏览次数:0
- 文件大小:6.49 MB
- 收藏次数:0
-
文件名称:
附件-996598759595787877.rar
锂离子电池配电施工图下载
- 锂离子电池正极材料生产线动力配电施工图cad平面图及大样图,系统图
- 锂离子电池正极材料生产线结施CAD施工图纸
- 锂离子电池正极材料生产线建施CAD施工图纸
- 锂离子电池电解液产品项目施工组织设计.doc
- 5000吨锂离子电池电解液产品项目组织设计.doc
- 吨锂离子电池电解液产品项目施工组织设计,平面图
- 产10亿安时动力锂离子电池项目招标文件106p.pdf
- 工厂配电全套施工图纸()
- 配电室电气施工图纸()
- 配电房电气CAD施工图纸(低压配电系统).dwg
- 冷轧车间电气CAD施工图纸(变配电系统)
- 车间宿舍工程电气CAD施工图纸(配电系统)
- 医院变配电房电气CAD施工图纸
- 炼钢技术厂区电气CAD施工图纸(配电系统)
- 机房电气CAD施工图纸(供配电系统)
- 下室电气CAD施工图纸(配电系统)
- 商务会所强电CAD施工图纸(照明配电系统)
- 厂房强电CAD施工图纸(配电系统)
- 工厂车间设备配电及照明CAD施工图纸
- 实验楼强电CAD施工图纸(配电系统)
全部评论
评论网友评论仅友表达个人看法,并不表明本站同意其观点,不得发布违反法律法规的内容!
