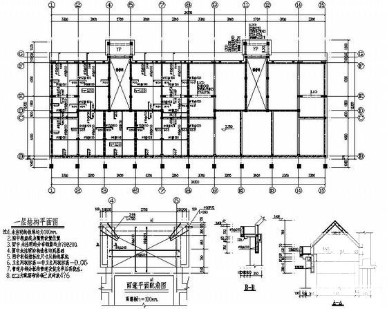
7层砖混结构毛石基础住宅楼结构设计施工CAD图
- 发布时间:2021-05-01
- 评论次数:0
- 浏览次数:0
- 文件大小:0.68 MB
- 收藏次数:0
-
文件名称:
附件-995879859097587606087.zip
砖混住宅楼结构施工下载
- [砖混结构住宅楼]6层砖混住宅楼建筑施工CAD图纸
- 砖混结构住宅楼施工方案.doc
- 浅谈砖混结构设计(砖混砌体)
- [单层砖混结构]单层砖混门卫结构CAD施工方案图纸
- 5层底框结构砖混结构住宅楼结构施工CAD图纸
- 砖混结构住宅楼结构CAD施工图纸(6层 筏板基础)
- 4层砖混结构住宅楼结构CAD施工方案图纸
- 5层砖混结构住宅楼结构CAD施工图纸(桩基础)
- 2层砖混结构住宅楼结构CAD施工方案图纸
- 7层保障房住宅楼结构CAD施工图纸(砖混结构)
- 单层砖混结构自建住宅楼结构CAD施工图纸
- 地上6层砖混结构住宅楼结构CAD施工图纸
- 3层砖混结构总裁私人住宅楼结构CAD施工图纸
- 地上6层砖混结构住宅楼结构CAD施工图纸
- 砖混结构住宅楼结构CAD施工图纸(6层 条形基础)
- 6层砖混结构住宅楼结构CAD施工方案图纸
- 6层带阁楼砖混结构住宅楼结构CAD施工图纸
- 12.05米4层砖混结构住宅楼结构CAD施工图纸
- 一份7层砖混结构住宅楼结构CAD施工图纸
- 多层砖混结构住宅楼结构设计CAD施工图纸.dwg
全部评论
评论网友评论仅友表达个人看法,并不表明本站同意其观点,不得发布违反法律法规的内容!
