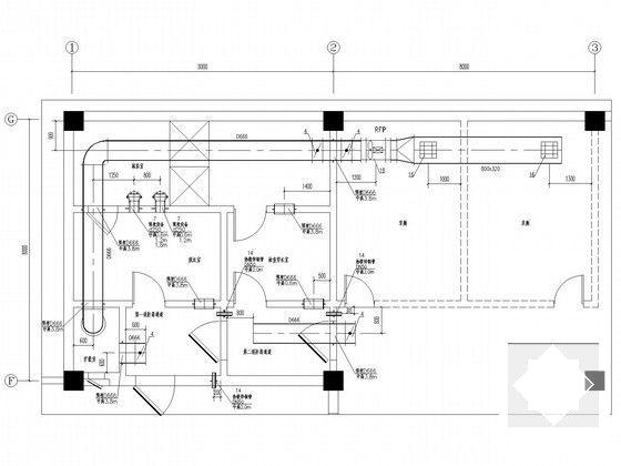
4800平米防空地下室送排风系统设计施工CAD大样图
- 发布时间:2021-05-01
- 评论次数:0
- 浏览次数:0
- 文件大小:1.3 MB
- 收藏次数:0
-
文件名称:
附件-995858578598859977598.rar
地下室排风系统下载
- 防空地下室送排风系统设计施工CAD大样图
- 5层研发中心实验室送排风系统设计施工CAD图纸
- 暖通专业送排风系统共板法兰施工方案.pdf
- 5层研发中心实验室送排风系统设计施工图cad平面图
- 质监局暖通CAD施工大样图(平时车库通风系统、战时进风系统)(防空地下室)(dwg)
- [分享]7层综合楼通风设计dwg格式CAD图纸(机械送排风)
- 市津海湾项目地下车库暖通CAD施工大样图(机械送排风系统)(dwg)
- 地下室通、排风系统平面CAD图纸(防火分区)(dwg)
- 排风系统验收资料合集
- 大学实验室送排风平面CAD图纸(dwg)
- 办公楼地下车库送排风CAD图纸(dwg)
- 大型商办楼防空地下室通风及防排烟系统设计施工CAD大样图
- 酒店新风排风系统CAD施工图纸
- 药厂排风平面施工图纸cad系统图
- 日立鲁邦国际广场通风空调图纸(含送排风系统图防排烟系统图),平面图
- 水系统新排风系统氟系统精品设计图cad
- 水系统设计新排风系统设计精品图cad平面图
- 棚户区改造防空地下室人防电气施工CAD大样图
- 防空地下室电气施工CAD大样图
- 会展中心防空地下室电气施工CAD大样图
全部评论
评论网友评论仅友表达个人看法,并不表明本站同意其观点,不得发布违反法律法规的内容!
