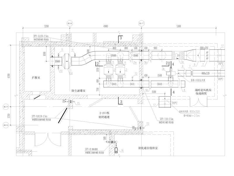
中铁防空地下室暖通施工大样图纸cad平面图
- 发布时间:2021-07-25
- 评论次数:0
- 浏览次数:0
- 文件大小:3.6 MB
- 收藏次数:0
-
文件名称:
附件-996579878696758689.rar
相关下载
- 防空地下室暖通施工大样图cad通风平面图及立面图
- 防空地下室人防电气CAD施工图纸(人防大样)
- 防空地下室电气施工图纸
- 防空地下室大样及坡道详图(CAD),平面图
- 某社区B项目一期防空地下室暖通图
- 防空地下室工程项目暖通设计PDF
- 防空地下室给排水图纸
- 防空地下室通风工程
- 防空地下室送排风系统设计施工CAD大样图
- 棚户区改造防空地下室人防电气施工CAD大样图
- 防空地下室电气施工CAD大样图
- 会展中心防空地下室电气施工CAD大样图
- 某小学防空地下室电气施工图cad平面图及大样图
- 某防空地下室电气施工图
- [CAD图]防空地下室人防给排水设计_设备安装大样(dwg)
- 质监局暖通CAD施工大样图(平时车库通风系统、战时进风系统)(防空地下室)(dwg)
- 会展总部防空地下室给排水施工图cad平面图
- 防空地下室施工图审查技术交流cad平面图
- 人才公寓地下室暖通施工大样图cad平面图
- 防空地下室结构验收注意问题.doc
全部评论
评论网友评论仅友表达个人看法,并不表明本站同意其观点,不得发布违反法律法规的内容!
