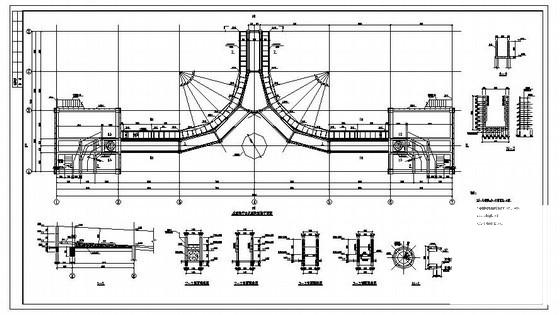
水渣沟平台及渣沟烟囱框架结构设计CAD施工图纸
- 发布时间:2021-05-01
- 评论次数:0
- 浏览次数:0
- 文件大小:0.67 MB
- 收藏次数:0
-
文件名称:
附件-995878857775767788788.rar
结构设计平台下载
- 水渣沟平台及渣沟烟囱框架结构设计CAD施工图纸(dwg)(7度抗震)
- 二级水电站海腊沟弃渣场整治工程关键施工技术及措施说明.doc
- 曲线梁混凝土框架平台及钢烟囱结构设计方案CAD图纸
- 一份炼钢厂扒渣机钢平台及设备基础结构CAD施工图纸
- 电渣压力焊质量缺陷及处理措施.doc
- 一份CAD水渣堆场钢结构厂房工程施工方案
- 吊沟及截水排水沟大样CAD图纸(dwg)
- 电渣压力焊技术交底.doc
- 曲线梁混凝土框架平台及钢烟囱结构设计CAD图纸(dwg)(7度抗震)
- 干渣改造工程施工方案
- 钢筋电渣压力焊施工工艺.doc
- 路灯基础及供电管沟大样CAD图纸(dwg)
- 排涝沟及管道开挖结构节点CAD详图纸
- 特大冷库及附属工程施工组织设计(框架砖混)(电渣压力焊)
- 水泥储存及输送工程钢筋施工方案(电渣压力焊)
- 工业厂房闷渣池基坑钢板桩及钢支撑支护施工方案.doc
- 钢筋电渣压力焊连接工艺.doc
- 大桥立交工程E线抢险出渣方案
- 电缆沟大样CAD图纸(dwg)
- 综合管沟祥CAD图纸(dwg)
全部评论
评论网友评论仅友表达个人看法,并不表明本站同意其观点,不得发布违反法律法规的内容!
