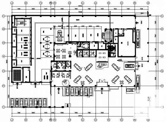
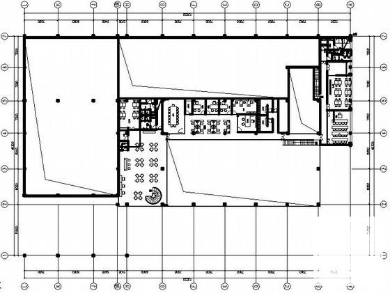
沃尔沃2层4s店给排水竣工CAD图纸
- 发布时间:2021-05-03
- 评论次数:0
- 浏览次数:0
- 文件大小:0.87 MB
- 收藏次数:0
-
文件名称:
附件-995860550608778776977.rar
相关下载
- 一份沃尔沃4s店给排水竣工CAD图纸
- 博融汽车东风日产4S店给排水成套CAD图纸
- 3层4S店给排水CAD施工图纸
- 2层汽车4S店给排水CAD图纸(施工方案图设计)
- 一份4S店给排水设计CAD图纸
- 一份4S店给排水CAD图纸(卫生间大样)
- 4S专卖店给排水消防设计CAD施工图纸.dwg
- 4S店给排水CAD施工图纸(室外消火栓系统).dwg
- 4S店给排水CAD施工图纸.dwg
- 7300平米3层4S店给排水CAD施工图纸
- 4S专卖店给排水消防图纸cad平面图
- 4S店暖通CAD施工图纸.dwg
- 品牌汽车4S店空调平面CAD图纸
- 汽车4s店建筑施工CAD图纸
- 2层4S店结构施工CAD图纸
- 一份3层汽车4S旗舰店给排水CAD图纸(建筑面积)
- 汽车4S店给排水设计cad图纸和平面图、系统图、大样图
- [CAD]奇瑞4s店建筑方案设计图纸(效果图纸)
- [卫生间大样]汽车4s店建筑CAD施工图纸
- 汽车4S店钢结构CAD施工图纸(dwg格式)
全部评论
评论网友评论仅友表达个人看法,并不表明本站同意其观点,不得发布违反法律法规的内容!
