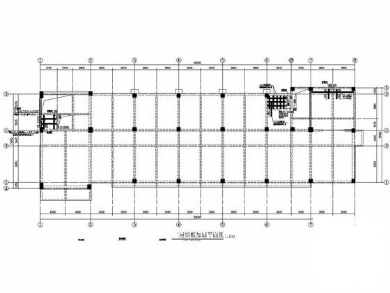
地上6层供水集团实验室梁板加固施工CAD图纸
- 发布时间:2021-05-04
- 评论次数:0
- 浏览次数:0
- 文件大小:0.52 MB
- 收藏次数:0
-
文件名称:
附件-995877760909796867767.rar
梁加固施工下载
- 梁板加固构造详图纸cad
- 办公楼加固施工方案(梁板加固)
- 梁板裂缝结构加固施工CAD图纸
- 结构梁板加固节点CAD详图纸
- [CAD]梁板加固构造大样
- 梁板加固构造大样_CAD
- 工程混凝土梁板加固施工方案
- 梁板墙预留孔洞加固做法cad
- 一份屋面现浇板、梁裂缝加固结构CAD施工图纸
- 2层屋面现浇板、梁裂缝加固结构CAD施工方案图纸
- 梁板补强(加固)大样(贴钢板)节点构造CAD详施工图纸
- 板钢丝绳网片加固说明及板双面加固节点图纸cad
- 梁加固大样CAD图纸
- 一份住宅楼结构加固工程(梁板)预算书(附CAD图纸)
- 一份结构加固构造详细设计CAD图纸(梁、柱、板、基础、墙体等)
- 预制板、承重梁加固节点构造CAD详图纸
- 110KV变电站碳纤维加固梁板节点构造详图纸cad
- 梁板补强贴钢板加固节点构造详图纸cad
- 住宅楼结构加固工程(梁板)预算书(附图纸)
- 边柱外包钢加固、梁加固详图纸cad
全部评论
评论网友评论仅友表达个人看法,并不表明本站同意其观点,不得发布违反法律法规的内容!
