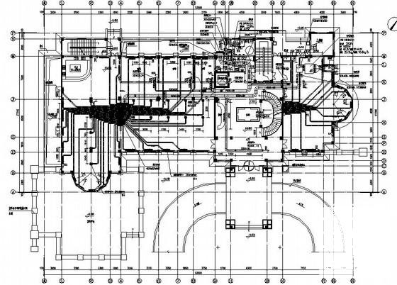
3806平米小区地上3层会所暖通CAD施工图纸
- 发布时间:2021-05-04
 - 评论次数:0
 
- 浏览次数:0
 - 文件大小:2.12 MB
 
- 收藏次数:0
 - 
								文件名称:
 附件-995858667676560596556.rar
							 
								小区会所施工图下载
							
						- 地上单层框架结构会所结构施工CAD图纸
 - 38000平米小区地上24层采暖通风CAD施工图纸
 - 小区会所整套景观施工CAD图纸
 - 会所及餐厅暖通整套CAD图纸
 - 4层住宅会所暖通设计施工CAD图纸
 - 住宅小区地下室及会所暖通施工方案.pdf
 - 住宅小区地下室及会所暖通施工方案.pdf
 - 小区会所的电气CAD图纸(dwg)
 - 小区会所低压配电系统图纸.
 - 高档住宅楼小区采暖通风CAD施工图纸(2栋高层,地下室,会所)
 - 最新小区商业会所电气CAD施工图纸(dwg)
 - 小区会所景观设计CAD施工图纸.dwg
 - 3层小区商业会所中心建筑施工CAD图纸
 - 某住宅小区会所暖通及给排水设计图,平面图
 - 3层会所采暖通风空调设计CAD图纸
 - 地上2层框架结构会所结构施工CAD图纸
 - 会所装修暖通设计CAD施工图纸(总共5张图纸)(暖通空调系统)(dwg)
 - 小区会所全套结构CAD图纸(dwg)
 - 小区会所全套电气,电信CAD图纸(dwg)
 - 小区会所广场设计方案设计CAD图纸
 
全部评论
						
							评论网友评论仅友表达个人看法,并不表明本站同意其观点,不得发布违反法律法规的内容!
						
						