农产品交易市场给排水全套施工CAD图纸2020
- 发布时间:2021-05-10
- 评论次数:0
- 浏览次数:0
- 文件大小:3.05 MB
- 收藏次数:0
- 
								文件名称: 附件-996999865888568598.rar 附件-996999865888568598.rar
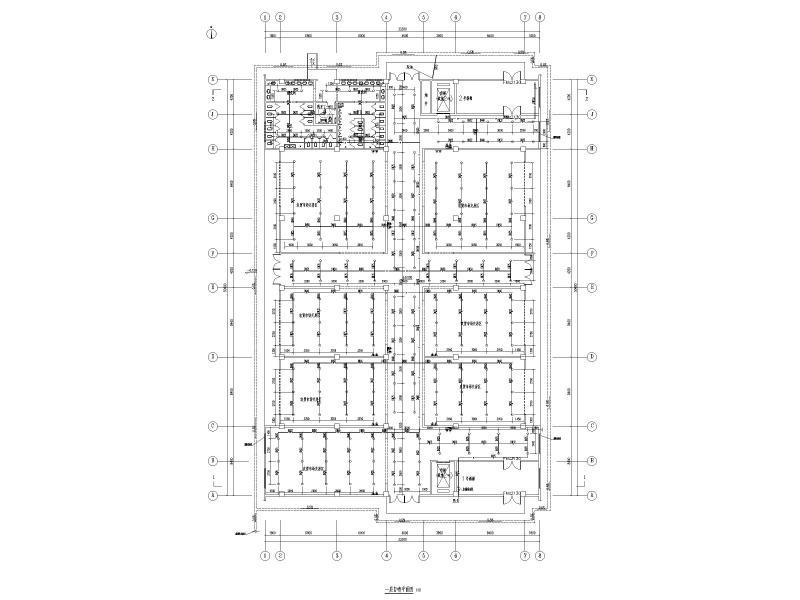
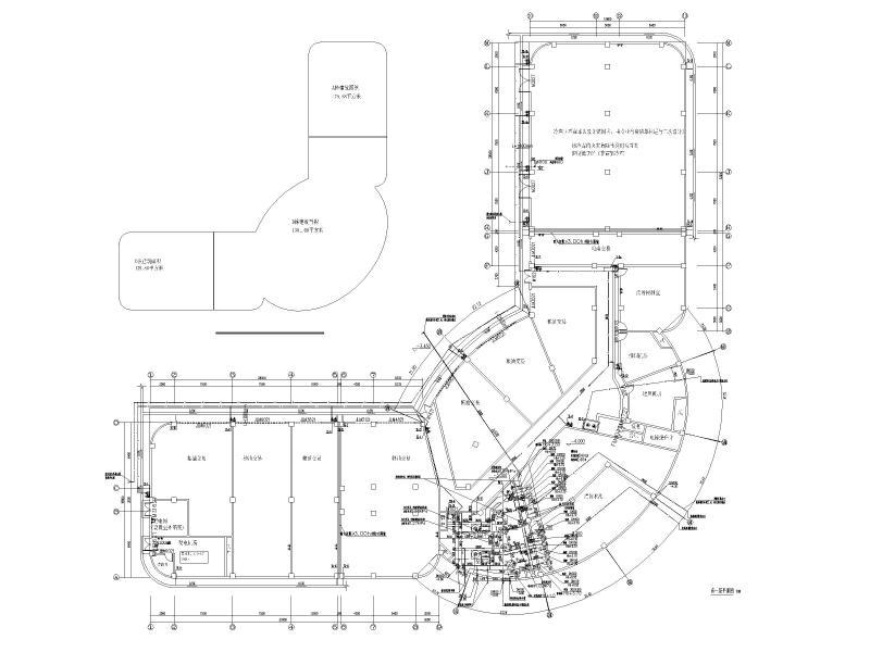
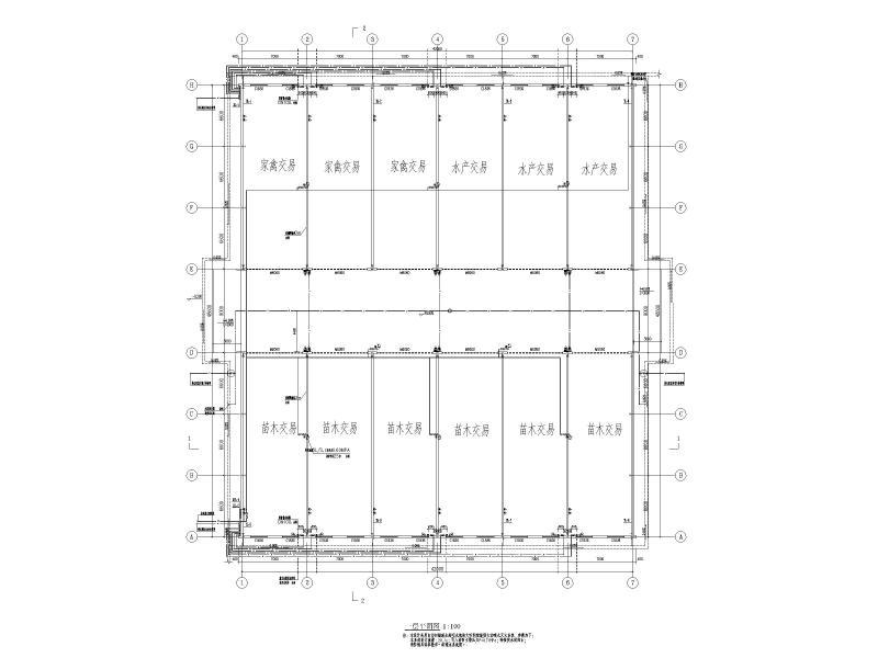
								交易市场给排水下载
							
						- 2层农产品交易市场全套电气施工CAD图纸(2020)
- 农产品交易市场管理用房幕墙施工CAD图纸
- 农产品交易市场建筑施工CAD图纸全套
- 农产品交易市场项目暖通施工图纸cad平面图
- 某农产品综合交易市场修建性详细规划设计,平面图
- 农产品交易市场室外景观工程施工大样图cad平面图
- 宝坻区农产品批发交易市场农机具展厅施工.doc
- 农产品批发交易市场农机具展厅工程临时用电施工方案.doc
- 农产品物流园给排水施工图2020cad平面图
- 农产品物流园给排水_CAD
- 单层农产品集配中心强电施工CAD图纸(2020)
- 食品批发交易市场给排水安装施工组织设计(高层).pdf
- 一份5层农贸产品交易市场给排水CAD施工图纸(自动喷淋系统图)
- 5层农贸产品交易市场给排水CAD施工图纸(自动喷水灭火系统)(dwg)
- 畜牧交易市场方案设计.pdf
- 现代农业科技园农产品加工配送区给排水CAD施工图纸
- 标准化厂房给排水全套施工图2020cad平面图及大样图,系统图
- 现代自然住宅大区景观全套施工图2020cad平面图
- 现代自然住宅大区景观全套施工图2020cad平面图
- 3个框架结构单体社区服务全套施工图2020
全部评论
						
							评论网友评论仅友表达个人看法,并不表明本站同意其观点,不得发布违反法律法规的内容!
						
						
 
	              	 
	              	 
	              	 
	              	 
	              	