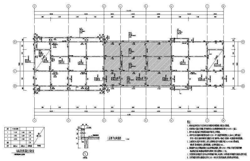
3层独立商业建筑混凝土结构施工方案图纸CAD
- 发布时间:2021-05-11
- 评论次数:0
- 浏览次数:0
- 文件大小:1.74 MB
- 收藏次数:0
-
文件名称:
附件-996966770858950576.dwg
建筑混凝土施工方案下载
- 技术中心建筑混凝土施工方案2017.doc
- 建筑工程混凝土小型砌块施工方案.doc
- 框架结构建筑混凝土施工方案.doc
- 20套建筑工程混凝土施工方案合集
- 住宅建筑混凝土工程施工方案.doc
- 建筑底板混凝土施工工艺.doc
- 建筑工程混凝土施工介绍(ppt)
- 建筑施工中混凝土结构工程加固施工方案及施工方法.pdf
- 饭店建筑方案文本(钢筋混凝土结构)
- 建筑工程混凝土缺陷修补方案.doc
- 建筑工程转换层混凝土浇筑方案培训讲义
- 高层建筑承台大体积混凝土施工施工组织方案.doc
- 高层建筑承台大体积混凝土施工施工组织方案.doc
- 建筑施工地下防水工程混凝土结构防水施工方案.doc
- 高强混凝土施工方案
- 浅谈建筑施工混凝土裂缝控制(施工组织).pdf
- 建筑施工混凝土裂缝控制施工技术应用.doc
- 建筑施工混凝土运输及浇筑施工工艺.doc
- 一份建筑工程成品化粪池专项施工方案(混凝土垫层)
- 一份仿古建筑修缮施工方案(水泥混凝土路面)
全部评论
评论网友评论仅友表达个人看法,并不表明本站同意其观点,不得发布违反法律法规的内容!
