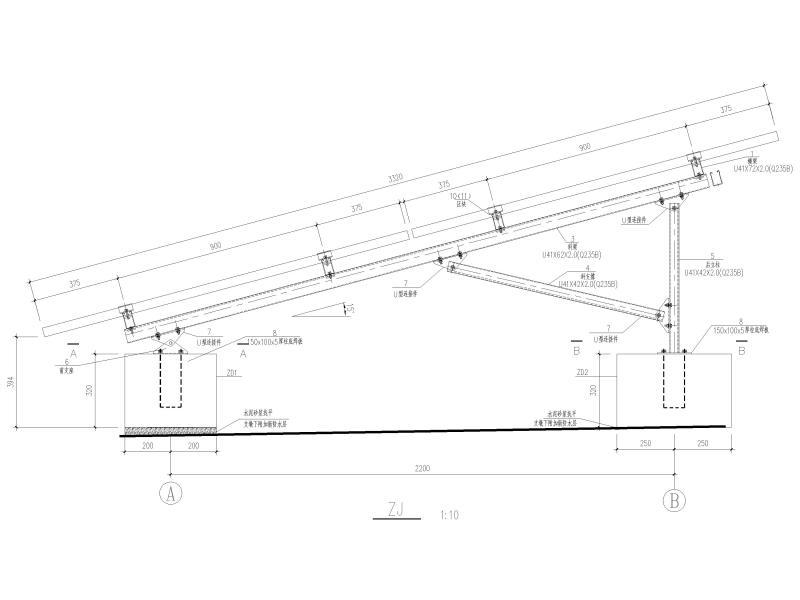
单阵列固定支架结构详大样图2017(CAD)
- 发布时间:2021-05-12
- 评论次数:0
- 浏览次数:0
- 文件大小:3.48 MB
- 收藏次数:0
- 
								文件名称: 附件-996977095955575808.dwg 附件-996977095955575808.dwg
								支架大样图下载
							
						- 污水收集池结构详大样图2017(CAD)
- 固定式支架PHC桩基专项施工方案(2017).doc
- 人防出入口楼梯及坡道结构详大样图2017_CAD
- 单层单山四跨门刚结构节点详大样图(CAD)
- 固定支架推力计算表.xls
- 固定支架推力计算表.xls
- 光伏支架结构施工CAD图纸2017
- 圆形单柱花架施工CAD详大样图(基础平面图)(dwg)
- 钢结构光伏场区固定式支架结构CAD施工图纸
- 管道钢支架节点构造CAD详施工图纸
- 柱脚锚栓固定支架节点(CAD图纸)(dwg)
- 柱脚锚栓固定支架节点构造详图纸cad
- 柱脚锚栓固定支架节点构造详图纸cad
- 钢结构CAD详大样图之钢管斜屋面节点构造CAD详大样图(dwg)
- 一份阵列喷泉水池施工CAD大样图纸
- 钢结构柱脚锚栓固定支架节点CAD详图纸(dwg)
- 桥涵上部结构固定支架就地浇筑施工技术,布置图
- 钢结构基础CAD详大样图(dwg)
- 桁架结构CAD详大样图(dwg)
- 旗台基础结构CAD详大样图(dwg)
全部评论
						
							评论网友评论仅友表达个人看法,并不表明本站同意其观点,不得发布违反法律法规的内容!
						
						
 
	              	 
	              	