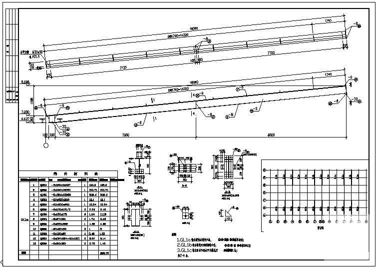
屋架钢梁大样节点构造详图纸cad立面图
- 发布时间:2021-06-03
 - 评论次数:0
 
- 浏览次数:0
 - 文件大小:0.25 MB
 
- 收藏次数:0
 - 
								文件名称:
 附件-995797708985775855.rar
							 
								屋架钢梁大样节点图下载
							
						- 一份屋架钢梁大样节点构造详细设计CAD图纸
 - [木栈道施工图]钢梁与钢梁、钢梁与钢柱连接节点详细设计CAD图纸dwg格式
 - 钢梁连接节点图(CAD),剖面图
 - [CAD图]钢管柱工字钢梁节点做法(dwg)
 - 钢梁连接节点详图CAD平面图
 - 混凝土型钢梁柱节点详图CAD
 - 木屋架大样图纸cad几何尺寸图
 - 一份6m钢屋架大样节点构造详细设计CAD图纸
 - 一份CAD30m焊接钢屋架课程设计(节点大样)
 - [pdf格式]钢梁与方钢管砼柱连接节点大样PDF
 - 钢管混凝土柱钢梁大样节点构造CAD详图纸(dwg)
 - H型钢梁工地拼接大样(CAD)
 - [pdf格式]H型钢梁与H型钢梁铰接节点PDF
 - 钢梁与钢梁的连接节点自动计算表格Excel.xls
 - 一份钢屋架节点详细设计CAD图纸(上下弦节点、屋脊节点)
 - 一份木屋架节点详细设计CAD图纸
 - 钢木组合屋架节点构造CAD详图纸(dwg)
 - 钢管拱屋架节点构造CAD详图纸(一)(dwg)
 - 钢屋架节点构造CAD详图纸(dwg)
 - 21米跨钢屋架节点CAD详图纸(dwg)
 
全部评论
						
							评论网友评论仅友表达个人看法,并不表明本站同意其观点,不得发布违反法律法规的内容!
						
						