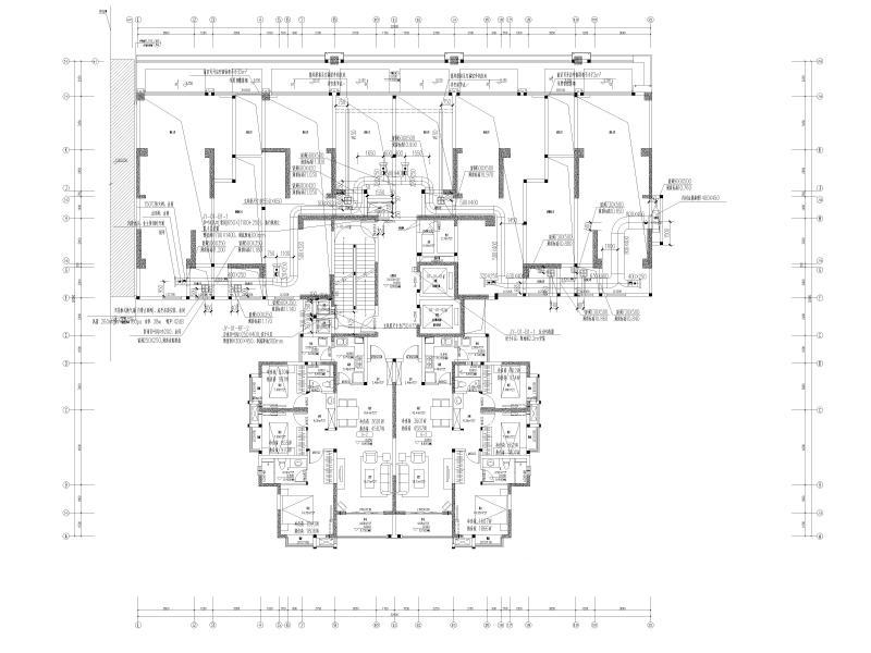
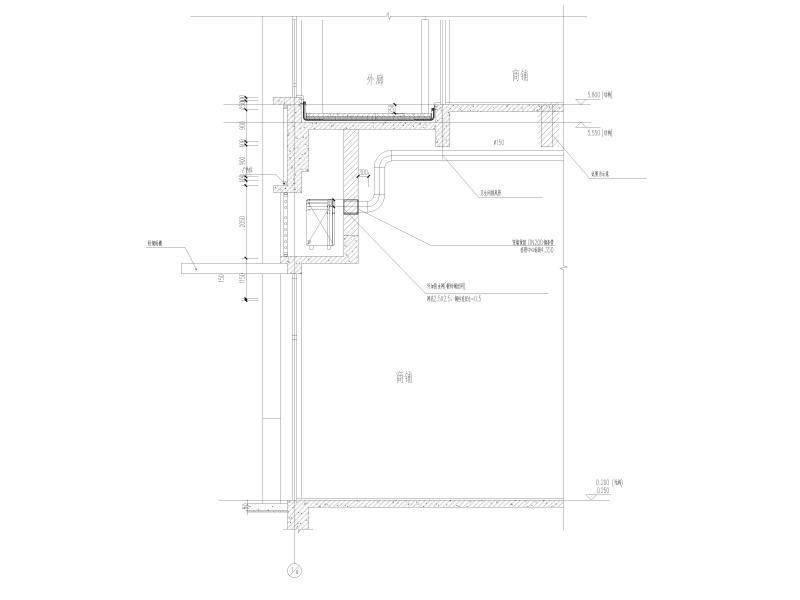
大型住宅暖通施工图纸防排烟系统cad平面图及剖面图
- 发布时间:2021-06-05
 - 评论次数:0
 
- 浏览次数:0
 - 文件大小:18.2 MB
 
- 收藏次数:0
 - 
								文件名称:
 附件-996558597588967706.rar
							 
								大型住宅暖通施工图下载
							
						- 33层大型住宅群体工程CAD施工图纸暖通(冷热负荷计算)(dwg)
 - 大型动迁住宅暖通施工图全套cad平面图
 - 大型动迁住宅暖通施工图全套cad平面图
 - 大型购物商场暖通空调设计CAD施工图纸
 - 大型连锁卖场暖通空调系统设计施工图
 - 大型楼盘暖通设计2021年
 - 某住宅暖通施工图
 - 大型商业住宅小区采暖通风系统设计CAD施工图纸(大院设计)(dwg)
 - 大型住宅综合体项目暖通施工图cad平面图及系统图,剖面图
 - 大型住宅小区24栋全套暖通系统设计施工图(125张),平面图
 - 大型住宅区暖通设计施工图cad平面图及大样图,系统图
 - 大型住宅小区及配套商业施工图(电气、给排水、暖通),平面图,大样图
 - 海大型住宅项目机电设备施工图(电气、给排水、暖通),平面图,系统图
 - 大型生产厂房暖通空调系统设计CAD施工图纸(流程图纸多)
 - 大型商业综合楼暖通空调设计CAD施工图纸
 - 5层大型购物中心暖通空调设计CAD施工图纸
 - 大型商业广场暖通空调系统设计CAD施工图纸
 - 2层大型药店采暖通风空调及防排烟CAD施工图纸(dwg)
 - 大型暖通空调设计CAD施工图纸,共12张.dwg
 - 大型高层综合楼暖通施工图cad通风防排烟图
 
全部评论
						
							评论网友评论仅友表达个人看法,并不表明本站同意其观点,不得发布违反法律法规的内容!
						
						