豆豆网

 找回密码
 立即注册

QQ登录

只需一步,快速开始

查看: 1645|回复: 0

大型高层综合楼暖通施工图cad通风防排烟图

[复制链接]

0

主题

0

帖子

1193

积分

超级版主

Rank: 8Rank: 8

积分
1193
发表于 2021-11-19 23:44:44 | 显示全部楼层 |阅读模式

该帖子包含附件可供参考学习和下载,您可以 搜索 更多您想要的资源


  • 设计详细说明:有
  • 建筑类别:住宅,商业,教育
  • 建筑高度类型:高层建筑
  • 建筑设计面积:107615.2平方米
  • 图纸设计深度:施工图
  • 图纸设计格式:CAD2000
  • 设计年代:近代
  • 设计内容:空调,通风,防排烟
  • 项目所在地:浙江
设计总说明:1、项目概要:该项目为 浙江省大型高层综合楼 暖通施工图 ,地上为住宅及商铺,地下室为汽车库、水泵房,非机动车库等,部分区域战时为人防工程,该项目总建筑面积107615.2平方米; 1#~10#楼为一类高层建筑,建筑层数18~27层,建筑高度:53.40~79.5米,S1#~S6#楼为多层建筑,建筑层数1层,建筑高度:8.35米。地下车库建筑设计面积:67206平方米,地下共 2层,抗震烈度:7度。
2、设计范围:
通风系统设计;空调系统设计
防排烟系统设计
地下室人防部分平时及战时通风设计
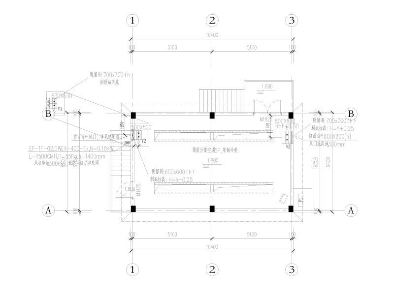
部分图纸展示:
2#楼二层防排烟通风平面图.jpg
开闭所一防排烟通风平面图.jpg
一层空调配管平面图.jpg
幼儿园一层防排烟平面图.jpg
幼儿园一层空调通风平面图.jpg
2#楼二层防排烟通风平面图
2#楼二层防排烟通风平面图
开闭所一防排烟通风平面图
开闭所一防排烟通风平面图
一层空调配管平面图
一层空调配管平面图
幼儿园一层防排烟平面图
幼儿园一层防排烟平面图
幼儿园一层空调通风平面图
幼儿园一层空调通风平面图
以上是部分图纸截图,有些图框没有放大后再截图,可能截图里不清晰或者看不到内容,您可以在下载后查看具体内容

附件2099pan1cdcfcef01sc01ddc.zip

102.92 MB

下载  售价: 100 积分    赚积分

相关帖子

回复

使用道具 举报

您需要登录后才可以回帖 登录 | 立即注册

本版积分规则

QQ|联系我们|豆豆网 ( 苏ICP备20004746号-1 )

GMT+8, 2025-12-28 18:48 , Processed in 0.024002 second(s), 27 queries .

本站所有内容均由网友自主分享,如有侵权内容或者违法行为,请及时联系站长删除,本站将根据实际情况进行积分奖励!请查看:免责声明

快速回复 返回顶部 返回列表