豆豆网

 找回密码
 立即注册

QQ登录

只需一步,快速开始

查看: 3272|回复: 0

一份12层知名酒店给排水CAD施工图纸

[复制链接]

0

主题

0

帖子

1359

积分

超级版主

Rank: 8Rank: 8

积分
1359
发表于 2020-2-17 13:29:02 | 显示全部楼层 |阅读模式

该帖子包含附件可供参考学习和下载,您可以 搜索 更多您想要的资源


  • 附件设计说明:有
  • 建筑类别:住宅,酒店
  • 建筑高度类型:多层建筑
  • 建筑设计结构形式:钢筋混凝土结构
  • 建筑设计面积:6048平方米
  • 建筑地上层数:12层
  • 建筑地下层数:1层
  • 图纸设计深度:施工图
  • 参考图纸:47张
  • 设计年代:近代
  • 地下室用途:车库
  • 排水设计:污水系统,废水系统
  • 消防设计:室外消火栓系统,室内消火栓系统,喷淋系统
  • 供水设备:高位水箱
  • 供水方式:市政供水,高位水箱供水
  • 供水分区:两区
  • 排水体制:污废合流
  • 排水技术:重力排水
  • 火灾危险等级:中危险级Ⅰ级
  • 消火栓用水量室外(L/S):20
  • 消火栓用水量室内(L/S):20
  • 大样节点:水箱,卫生间
  • 项目所在地:福建

附件详情

  • 给排水设计说明
  • 酒店部分
  • 一至六层给排水平面图
  • 七至十一层给排水平面图
  • 十二层给排水平面图
  • 闷顶层给排水及消防平面图
  • 消防平面图
  • 消火栓系统图
  • 冷凝水系统原理
  • 给排水系统原理图
  • 住宅部分
  • 给排水平面图
  • 给排水系统图
  • 地下室给排水及消火栓平面图
  • 地下室自动喷淋平面图
  • 地下室排水原理图

附件详情

该项目分为酒店、住宅两部分:其中酒店总建筑面积
6048.3平米建筑层数12层,建筑高度为41米,是一栋休闲、商业、娱乐的综合酒店;住宅部分为16。
设计范围为给排水平面图、喷淋平面图、给排水系统图等

,共计47张图。


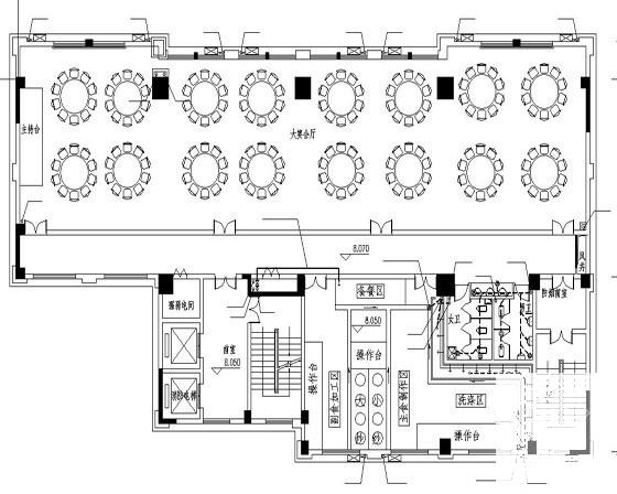
酒店一层给排水平面图

酒店三层给排水平面图

给水、 消防系统 原理图

排水原理图

卫生间、屋顶水箱大样图

住宅给排水平面图

酒店消防平面图

第 1 张图
第 1 张图
第 2 张图
第 2 张图
第 3 张图
第 3 张图
第 4 张图
第 4 张图
第 5 张图
第 5 张图
第 6 张图
第 6 张图
以上是部分图纸截图,有些图框没有放大后再截图,可能截图里不清晰或者看不到内容,您可以在下载后查看具体内容

温馨提示:该资料由网友于2020-2-17 13:29:02上传分享,您可以下载该资料进行学习和参考,如有侵权内容或者违法行为,请及时联系站长删除,如有疑问,您可以在给水排水专区发帖交流相关知识。

附件2099v11edc0dcsefccfs212es2.rar

4.72 MB

下载  售价: 100 积分    赚积分

相关帖子

回复

使用道具 举报

您需要登录后才可以回帖 登录 | 立即注册

本版积分规则

QQ|联系我们|豆豆网 ( 苏ICP备20004746号-1 )

GMT+8, 2025-12-27 19:34 , Processed in 0.015670 second(s), 27 queries .

本站所有内容均由网友自主分享,如有侵权内容或者违法行为,请及时联系站长删除,本站将根据实际情况进行积分奖励!请查看:免责声明

快速回复 返回顶部 返回列表