豆豆网

 找回密码
 立即注册

QQ登录

只需一步,快速开始

查看: 1686|回复: 0

一份12层综合办公楼电气CAD施工图纸(二类高层,二级负荷,第二类防雷)

[复制链接]

0

主题

0

帖子

1322

积分

超级版主

Rank: 8Rank: 8

积分
1322
发表于 2020-2-17 18:55:47 | 显示全部楼层 |阅读模式

该帖子包含附件可供参考学习和下载,您可以 搜索 更多您想要的资源


  • 建筑类别:办公
  • 建筑高度类型:高层建筑
  • 建筑设计结构形式:钢筋混凝土结构
  • 建筑设计面积:11814平方米
  • 建筑地上层数:11层
  • 建筑地下层数:1层
  • 图纸设计深度:施工图
  • 参考图纸:78张
  • 地下室用途:车库,设备用房
  • 负荷等级:二级
  • 防雷等级:第二类
  • 火灾保护分级:二级
  • 接地方式:TN-C-S
  • 强电设计:配变电所,低压配电,电气照明,建筑物防雷,接地安全
  • 弱电设计: 火灾自动报警系统 ,综合布线系统,通信系统,有线电视和卫星接收系统,信息网络系统

附件详情

  • 1、电气设计说明
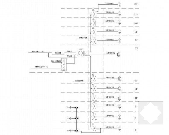
  • 2、 竖向配电干线 系统图
  • 3、配电箱系统图
  • 4、配电室平面图及电井大样图
  • 5、照明平面图
  • 6、动力平面图
  • 7、防雷接地平面图
  • 8、消防系统图
  • 9、电视系统图
  • 10、综合布线系统图
  • 11、消防平面图
  • 12、 弱电平面图

附件详情

该附件是二类高层综合办公楼电气施工图纸,总共78张。该项目地下一层,地上十一层,裙房三层。地下一层为汽车库和设备用房,地上一至十一层为办公,总面积为11814m ,占地面积2250.54m ,框架结构。
该资料包括配电室、动力、照明、防雷及接地设计、消防系统、电视系统、综合布线系统设计等。

六层弱电平面图

三层照明平面图

竖向干线系统图

一层消防平面图

综合布线系统图

一层空调配电平面图

第 1 张图
第 1 张图
第 2 张图
第 2 张图
第 3 张图
第 3 张图
第 4 张图
第 4 张图
第 5 张图
第 5 张图
第 6 张图
第 6 张图
以上是部分图纸截图,有些图框没有放大后再截图,可能截图里不清晰或者看不到内容,您可以在下载后查看具体内容

温馨提示:该资料由网友于2020-2-17 18:55:47上传分享,您可以下载该资料进行学习和参考,如有侵权内容或者违法行为,请及时联系站长删除,如有疑问,您可以在电气工程专区发帖交流相关知识。

附件2099v11edecd0fd1cdscd2fc0d.rar

4.85 MB

下载  售价: 100 积分    赚积分

相关帖子

回复

使用道具 举报

您需要登录后才可以回帖 登录 | 立即注册

本版积分规则

QQ|联系我们|豆豆网 ( 苏ICP备20004746号-1 )

GMT+8, 2025-12-23 03:20 , Processed in 0.023267 second(s), 27 queries .

本站所有内容均由网友自主分享,如有侵权内容或者违法行为,请及时联系站长删除,本站将根据实际情况进行积分奖励!请查看:免责声明

快速回复 返回顶部 返回列表