豆豆网

 找回密码
 立即注册

QQ登录

只需一步,快速开始

查看: 1857|回复: 0

一份二类高层裙房建筑电气CAD施工图纸(二级,三级负荷)

[复制链接]

0

主题

0

帖子

1737

积分

超级版主

Rank: 8Rank: 8

积分
1737
发表于 2020-2-16 14:02:31 | 显示全部楼层 |阅读模式

该帖子包含附件可供参考学习和下载,您可以 搜索 更多您想要的资源


  • 建筑类别:商业
  • 建筑设计面积:3277.97平方米
  • 建筑地上层数:2层
  • 图纸设计深度:施工图
  • 参考图纸:9张
  • 设计年代:近代
  • 负荷等级:二级,三级
  • 接地方式:TN-S
  • 项目所在地:四川
  • 强电设计: 供配电系统 ,低压配电,电气照明,建筑物防雷,接地安全
  • 弱电设计: 火灾自动报警系统

附件详情

  • 1、资料目录 设备材料表;
  • 2、 电气设计 说明;
  • 3、低压配电干线系统图;
  • 4、系统图;
  • 5、照明平面布置图;
  • 6、防雷平面布置图;
  • 7、消防平面布置图;
  • 8、防雷平面布置图.

附件详情

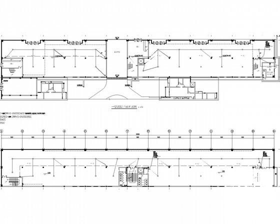
该附件为[四川]二类高层裙房建筑电气施工图,共9张。
项目概况:该项目为层数为2F,主体高度为10.0米,建筑面积3277.97平方米,本建筑属于二类高层裙房建筑。
设计内容:建筑物内220/380V配电系统;建筑物防雷、接地系统及安全措施;有线电视系统、通讯系统、宽带网络系统;火灾自动报警及联动控制系统。
该附件于9月设计完成。

消防平面图

系统图

低压配电干线系统图

第 1 张图
第 1 张图
第 2 张图
第 2 张图
第 3 张图
第 3 张图
第 4 张图
第 4 张图
以上是部分图纸截图,有些图框没有放大后再截图,可能截图里不清晰或者看不到内容,您可以在下载后查看具体内容

温馨提示:该资料由网友于2020-2-16 14:02:31上传分享,您可以下载该资料进行学习和参考,如有侵权内容或者违法行为,请及时联系站长删除,如有疑问,您可以在电气工程专区发帖交流相关知识。

附件2099v11edecsc0cc1f021f202f.rar

484.59 KB

下载  售价: 100 积分    赚积分

相关帖子

回复

使用道具 举报

您需要登录后才可以回帖 登录 | 立即注册

本版积分规则

QQ|联系我们|豆豆网 ( 苏ICP备20004746号-1 )

GMT+8, 2025-12-28 05:03 , Processed in 0.016383 second(s), 27 queries .

本站所有内容均由网友自主分享,如有侵权内容或者违法行为,请及时联系站长删除,本站将根据实际情况进行积分奖励!请查看:免责声明

快速回复 返回顶部 返回列表