豆豆网

 找回密码
 立即注册

QQ登录

只需一步,快速开始

查看: 2544|回复: 0

一份4层大剧院电气CAD施工图纸(甲级设计院,第二类防雷)(火灾自动报警系统)

[复制链接]

0

主题

0

帖子

1391

积分

超级版主

Rank: 8Rank: 8

积分
1391
发表于 2020-2-18 09:01:28 | 显示全部楼层 |阅读模式

该帖子包含附件可供参考学习和下载,您可以 搜索 更多您想要的资源


  • 建筑高度类型:多层建筑
  • 建筑设计面积:9483.05平方米
  • 建筑地上层数:4层
  • 图纸设计深度:施工图
  • 参考图纸:30张
  • 设计年代:近代
  • 负荷等级:二级,三级
  • 防雷等级:第二类
  • 接地方式:TN-S
  • 项目所在地:湖南
  • 强电设计:供配电系统,低压配电,电气照明,建筑物防雷,接地安全,其它
  • 弱电设计: 火灾自动报警系统

附件详情

  • 1、电气设计总说明及主要设备材料表
  • 2、10KV高压配电系统图
  • 3、1#变压器低压配电系统图
  • 4、2#变压器低压配电系统图
  • 5、低压配电主干线系统图
  • 6、变配电室平面布置详图
  • 7、配电箱系统图(一、二)
  • 8、一层电气主干线平面图
  • 9、一层基础接地平面图
  • 10、一~四层 照明平面图
  • 11、7.5m标高照明平面图
  • 12、屋顶 防雷平面图
  • 13、一~四层动力平面图
  • 14、7.5m标高动力平面图
  • 15、屋顶层动力平面图
  • 16、火灾自动报警系统设计说明
  • 17、火灾自动报警系统图
  • 18、一~四层报警平面图
  • 19、7.5m标高报警平面图

附件详情

该项目位于湖南,项目为安化大剧院。该工程地上共4层,总建筑面积为9483.05平方米;建筑总高度为21米,该项目属于二类公共建筑工程,建筑耐火等级为一级。
设计范围包括:
1)10/0.4kV变配电系统;
2)电力配电系统;
3)照明系统;
4)建筑物防雷、接地系统及安全措施;
5)火灾自动报警系统;
该附件,总共30张。

1#变压器低压配电系统图

低压配电主干线系统图

火灾自动报警系统图

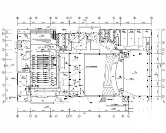
一层动力平面图

一层报警平面图

大剧院施工图 - 1
第 1 张图
大剧院施工图 - 2
第 2 张图
大剧院施工图 - 3
第 3 张图
大剧院施工图 - 4
第 4 张图
大剧院施工图 - 5
第 5 张图
大剧院施工图 - 6
第 6 张图
以上是部分图纸截图,有些图框没有放大后再截图,可能截图里不清晰或者看不到内容,您可以在下载后查看具体内容

温馨提示:该资料由网友于2020-2-18 09:01:28上传分享,您可以下载该资料进行学习和参考,如有侵权内容或者违法行为,请及时联系站长删除,如有疑问,您可以在电气工程专区发帖交流相关知识。

附件2099v11edec0ccwedcfd0d001c.rar

2.08 MB

下载  售价: 100 积分    赚积分

大剧院施工图相关帖子

回复

使用道具 举报

您需要登录后才可以回帖 登录 | 立即注册

本版积分规则

QQ|联系我们|豆豆网 ( 苏ICP备20004746号-1 )

GMT+8, 2025-12-31 22:47 , Processed in 0.054329 second(s), 27 queries .

本站所有内容均由网友自主分享,如有侵权内容或者违法行为,请及时联系站长删除,本站将根据实际情况进行积分奖励!请查看:免责声明

快速回复 返回顶部 返回列表