豆豆网

 找回密码
 立即注册

QQ登录

只需一步,快速开始

查看: 2442|回复: 0

一份5层学院机电实训楼电气CAD施工图纸(二级负荷,第二类防雷)

[复制链接]

0

主题

0

帖子

1642

积分

超级版主

Rank: 8Rank: 8

积分
1642
发表于 2020-2-18 09:01:26 | 显示全部楼层 |阅读模式

该帖子包含附件可供参考学习和下载,您可以 搜索 更多您想要的资源


  • 建筑类别:教育
  • 建筑高度类型:多层建筑
  • 建筑设计面积:7967.22平方米
  • 建筑地上层数:5层
  • 图纸设计深度:施工图
  • 参考图纸:21张
  • 设计年代:近代
  • 负荷等级:二级
  • 防雷等级:第二类
  • 接地方式:TN-C-S
  • 强电设计:低压配电,电气照明,建筑物防雷,接地安全
  • 弱电设计:通信系统,有线电视和卫星接收系统,广播系统,信息网络系统

附件详情

  • 一、电气设计说明
  • 二、竖向配电系统图
  • 三、有线电视系统图
  • 四、综合布线系统图
  • 五、 配电箱系统
  • 六、 照明平面图
  • 七、插座动力平面图
  • 八、 弱电平面图
  • 九、防雷接地平面图

附件详情

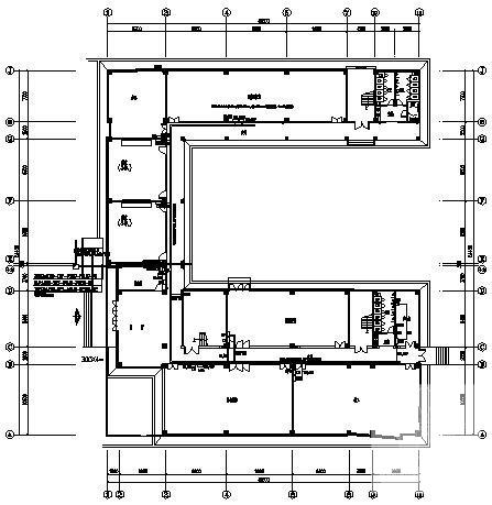
本稿件是[湖南]某学院机电实训楼电气施工图纸,总建筑面积为7967.22m2, 建筑层数和高度:地上5层,总高度为20.25米。该项目为五层框架结构建筑。
电气设计包含配电系统设计、有线电视系统设计、综合布线系统设计、照明灯具布置、插座动力系统设计、防雷接地系统设计等。

第 1 张图
第 1 张图
第 2 张图
第 2 张图
第 3 张图
第 3 张图
第 4 张图
第 4 张图
以上是部分图纸截图,有些图框没有放大后再截图,可能截图里不清晰或者看不到内容,您可以在下载后查看具体内容

温馨提示:该资料由网友于2020-2-18 09:01:26上传分享,您可以下载该资料进行学习和参考,如有侵权内容或者违法行为,请及时联系站长删除,如有疑问,您可以在电气工程专区发帖交流相关知识。

附件2099v11edec0cccce1cdcce0c2.rar

711.79 KB

下载  售价: 100 积分    赚积分

相关帖子

回复

使用道具 举报

您需要登录后才可以回帖 登录 | 立即注册

本版积分规则

QQ|联系我们|豆豆网 ( 苏ICP备20004746号-1 )

GMT+8, 2025-12-28 21:22 , Processed in 0.015623 second(s), 28 queries .

本站所有内容均由网友自主分享,如有侵权内容或者违法行为,请及时联系站长删除,本站将根据实际情况进行积分奖励!请查看:免责声明

快速回复 返回顶部 返回列表