豆豆网

 找回密码
 立即注册

QQ登录

只需一步,快速开始

查看: 2147|回复: 0

一份4层办公楼电气设计CAD施工图纸

[复制链接]

0

主题

0

帖子

1579

积分

超级版主

Rank: 8Rank: 8

积分
1579
发表于 2020-2-18 11:45:04 | 显示全部楼层 |阅读模式

该帖子包含附件可供参考学习和下载,您可以 搜索 更多您想要的资源


  • 建筑类别:办公
  • 建筑高度类型:多层建筑
  • 建筑设计结构形式:钢筋混凝土结构
  • 建筑设计面积:2650平方米
  • 建筑地上层数:4层
  • 图纸设计深度:施工图
  • 参考图纸:14张
  • 设计年代:近代
  • 地下室用途:人防
  • 节点大样:人防
  • 防雷等级:第三类
  • 接地方式:TN-S
  • 项目所在地:山东
  • 强电设计:供配电系统,电气照明,建筑物防雷,接地安全,其它
  • 弱电设计:综合布线系统,其它

附件详情

  • 资料目录
  • 电气设计说明
  • 设备材料表
  • 配电系统图
  • 接地装置平面图
  • 一层电力平面图
  • 二层电力平面图
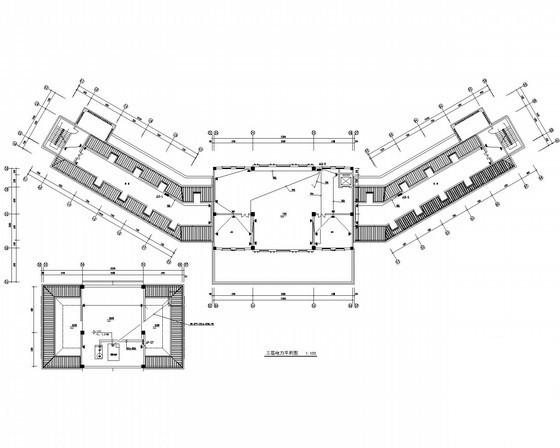
  • 三层电力平面图
  • 屋顶 防雷平面图
  • 一层 照明平面图
  • 二层照明平面图
  • 三层照明平面图
  • 综合布线系统图
  • 一层 弱电平面图
  • 二层弱电平面图
  • 三层弱电平面图

附件详情

该项目位于山东省,为四层办公楼,建筑面积约为2650平方米,建筑总高度为21m结构类型:钢筋混凝土框架结构,现浇混凝土楼板。设计范围:低压配电,照明系统;建筑物防雷、接地系统及安全措施;综合布线系统等。
,图纸共14张。

配电系统图

接地装置平面图

一层照明平面图

第 1 张图
第 1 张图
第 2 张图
第 2 张图
第 3 张图
第 3 张图
第 4 张图
第 4 张图
以上是部分图纸截图,有些图框没有放大后再截图,可能截图里不清晰或者看不到内容,您可以在下载后查看具体内容

温馨提示:该资料由网友于2020-2-18 11:45:04上传分享,您可以下载该资料进行学习和参考,如有侵权内容或者违法行为,请及时联系站长删除,如有疑问,您可以在电气工程专区发帖交流相关知识。

附件2099v11edec0d01fwec2ccccc0.rar

1.24 MB

下载  售价: 100 积分    赚积分

相关帖子

回复

使用道具 举报

您需要登录后才可以回帖 登录 | 立即注册

本版积分规则

QQ|联系我们|豆豆网 ( 苏ICP备20004746号-1 )

GMT+8, 2025-12-30 02:49 , Processed in 0.016960 second(s), 28 queries .

本站所有内容均由网友自主分享,如有侵权内容或者违法行为,请及时联系站长删除,本站将根据实际情况进行积分奖励!请查看:免责声明

快速回复 返回顶部 返回列表