豆豆网

 找回密码
 立即注册

QQ登录

只需一步,快速开始

查看: 2002|回复: 0

一份大型厂区变配电工程电气设计CAD施工图纸(平面布置图)

[复制链接]

0

主题

0

帖子

963

积分

超级版主

Rank: 8Rank: 8

积分
963
发表于 2020-2-19 16:37:05 | 显示全部楼层 |阅读模式

该帖子包含附件可供参考学习和下载,您可以 搜索 更多您想要的资源


  • 建筑类别:工业建筑
  • 建筑高度类型:单层建筑
  • 建筑设计结构形式:钢筋混凝土结构
  • 图纸设计深度:施工图
  • 参考图纸:20张
  • 节点大样:电缆, 开关柜, 变压器
  • 强电 设计: 供配电系统 , 配变电所, 低压配电, 电气照明, 建筑物防雷, 接地安全

附件详情

  • 1、车变室配电图
  • 2、变配电所平面配置图
  • 3、变配电所剖析图
  • 4、建筑设备大修厂总平面图
  • 5、变配电所电缆 平面布置图
  • 6、防雷平面布置图
  • 7、照明平面布置图
  • 8、应急照明平面配置图
  • 9、接地平面配置图
  • 10、插座平面配置图

附件详情

这份参考资料是大型厂区变配电工程全套电气施工图纸。一共有20张。
该资料范围包括35KV一次系统、10KV一次系统、0.4KV一次系统图以及配电室的设备布置、接地设计、防雷设计、照明设计等。

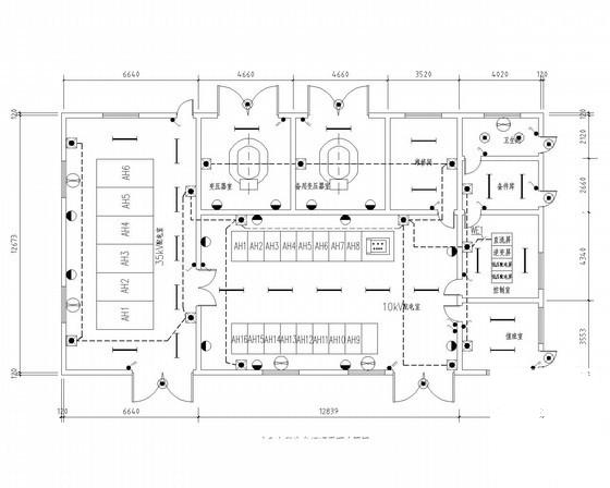
变配电所平面布置图

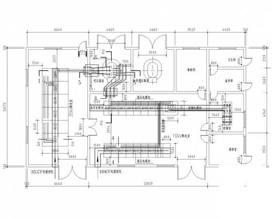
变配电所剖面图

变配电所应急照明平面布置图

配电工程电气设计 - 1
第 1 张图
配电工程电气设计 - 2
第 2 张图
配电工程电气设计 - 3
第 3 张图
配电工程电气设计 - 4
第 4 张图
以上是部分图纸截图,有些图框没有放大后再截图,可能截图里不清晰或者看不到内容,您可以在下载后查看具体内容

温馨提示:该资料由网友于2020-2-19 16:37:05上传分享,您可以下载该资料进行学习和参考,如有侵权内容或者违法行为,请及时联系站长删除,如有疑问,您可以在电气工程专区发帖交流相关知识。

附件2099v11edecd1fcec0ed1sc1sd.zip

423.31 KB

下载  售价: 100 积分    赚积分

配电工程电气设计相关帖子

回复

使用道具 举报

您需要登录后才可以回帖 登录 | 立即注册

本版积分规则

QQ|联系我们|豆豆网 ( 苏ICP备20004746号-1 )

GMT+8, 2025-12-24 23:41 , Processed in 0.015582 second(s), 27 queries .

本站所有内容均由网友自主分享,如有侵权内容或者违法行为,请及时联系站长删除,本站将根据实际情况进行积分奖励!请查看:免责声明

快速回复 返回顶部 返回列表