豆豆网

 找回密码
 立即注册

QQ登录

只需一步,快速开始

查看: 2677|回复: 0

两层框架结构别墅结构加固改造CAD施工图纸(平面布置图)

[复制链接]

0

主题

0

帖子

1096

积分

超级版主

Rank: 8Rank: 8

积分
1096
发表于 2020-2-19 23:23:13 | 显示全部楼层 |阅读模式

该帖子包含附件可供参考学习和下载,您可以 搜索 更多您想要的资源


  • 建筑类别:别墅
  • 建筑高度类型:多层建筑
  • 建筑地上层数:2层
  • 图纸设计深度:施工图
  • 民用建筑设计使用年限:50年
  • 建筑设计结构形式:钢筋混凝土结构
  • 钢筋混凝土结构:框架
  • 基础形式 :条形基础
  • 结构安全等级:二级
  • 参考图纸:12张
  • 设计年代:近代

附件详情

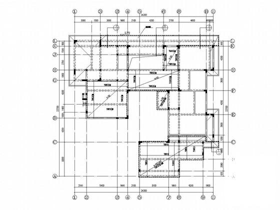
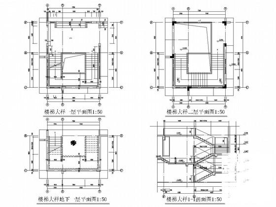
该附件为两层小别墅的结构加固改造施工图,本次改造混凝土强度为C30,原有结构造出是应采用水钻开孔的方式,基础为条形基础。
该资料包含:改造加固总说明、基础 平面布置图 、梁板配筋平面图、板配筋平面图、板凿除平面图、楼梯大样图等共12张图纸。
出图时间:近代.12。

一层梁板配筋平面图

二层板配筋平面图

框架梁柱配筋图

别墅加固改造 - 1
第 1 张图
别墅加固改造 - 2
第 2 张图
别墅加固改造 - 3
第 3 张图
别墅加固改造 - 4
第 4 张图
以上是部分图纸截图,有些图框没有放大后再截图,可能截图里不清晰或者看不到内容,您可以在下载后查看具体内容

温馨提示:该资料由网友于2020-2-19 23:23:13上传分享,您可以下载该资料进行学习和参考,如有侵权内容或者违法行为,请及时联系站长删除,如有疑问,您可以在别墅建筑专区发帖交流相关知识。

附件2099v11edfccccc02ceccffccs.rar

907.75 KB

下载  售价: 100 积分    赚积分

别墅加固改造相关帖子

回复

使用道具 举报

您需要登录后才可以回帖 登录 | 立即注册

本版积分规则

QQ|联系我们|豆豆网 ( 苏ICP备20004746号-1 )

GMT+8, 2025-12-28 22:17 , Processed in 0.028318 second(s), 28 queries .

本站所有内容均由网友自主分享,如有侵权内容或者违法行为,请及时联系站长删除,本站将根据实际情况进行积分奖励!请查看:免责声明

快速回复 返回顶部 返回列表