豆豆网

 找回密码
 立即注册

QQ登录

只需一步,快速开始

查看: 2049|回复: 0

一份10层办公楼空调通风防排烟系统设计CAD施工图纸(给排水设计风机盘管配电)

[复制链接]

0

主题

0

帖子

1322

积分

超级版主

Rank: 8Rank: 8

积分
1322
发表于 2020-2-20 15:52:06 | 显示全部楼层 |阅读模式

该帖子包含附件可供参考学习和下载,您可以 搜索 更多您想要的资源


  • 附件设计说明:有
  • 建筑类别:办公
  • 建筑高度类型:高层建筑
  • 建筑地上层数:9层
  • 建筑地下层数:1层
  • 图纸设计深度:施工图
  • 参考图纸:33张
  • 设计内容:空调,通风,防排烟,冷热源
  • 空调系统:全水系统
  • 送风方式:散流器送风

附件详情

一、项目概要:
地下一层,地上主体九层,地上部分设置集中空调系统...
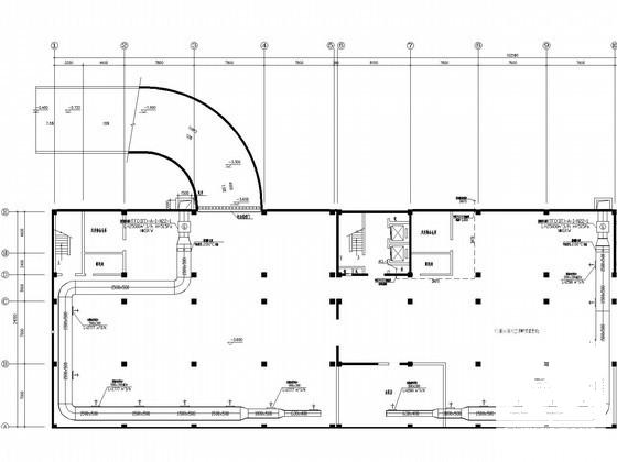
二、冷热源:
冷热源由设置在屋面的热泵机组提供...
三、空调系统:
1.空调冷媒是由屋面热泵机组提供的7~12°C冷水。
2.空调热媒是由屋面热泵机组提供的40~45°C热水。
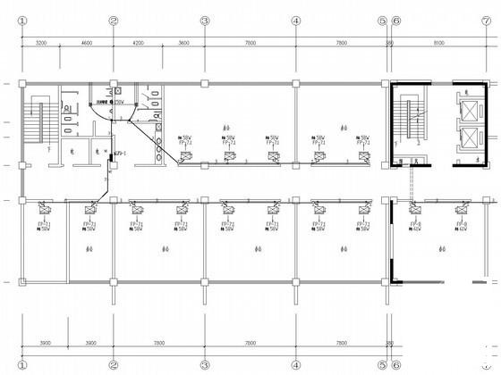
3.一~九层为风机盘管(水-水)系统,风机盘管为卧式暗装普通型。
4.气流组织为百叶风口上侧送,顶部下回风...
四、通风排烟系统:
1.地下室排烟风机、走廊排烟风机、楼梯间加压风机、排烟防火阀及走廊排烟风口等均受消防中心联动控制。
2.空调风系统及通风系统的风管和其机组连接均采用软接...

图纸共33张。


空调平面图

风机盘管配电

空调原理系统图

消火栓给水系统

给排水平面图

办公楼空调给排水 - 1
第 1 张图
办公楼空调给排水 - 2
第 2 张图
办公楼空调给排水 - 3
第 3 张图
办公楼空调给排水 - 4
第 4 张图
办公楼空调给排水 - 5
第 5 张图
办公楼空调给排水 - 6
第 6 张图
以上是部分图纸截图,有些图框没有放大后再截图,可能截图里不清晰或者看不到内容,您可以在下载后查看具体内容

温馨提示:该资料由网友于2020-2-20 15:52:06上传分享,您可以下载该资料进行学习和参考,如有侵权内容或者违法行为,请及时联系站长删除,如有疑问,您可以在给水排水专区发帖交流相关知识。

附件2099v11ede2d10cf2w21c1d20d.rar

3.02 MB

下载  售价: 100 积分    赚积分

办公楼空调给排水相关帖子

回复

使用道具 举报

您需要登录后才可以回帖 登录 | 立即注册

本版积分规则

QQ|联系我们|豆豆网 ( 苏ICP备20004746号-1 )

GMT+8, 2025-12-24 01:57 , Processed in 0.016312 second(s), 27 queries .

本站所有内容均由网友自主分享,如有侵权内容或者违法行为,请及时联系站长删除,本站将根据实际情况进行积分奖励!请查看:免责声明

快速回复 返回顶部 返回列表