豆豆网

 找回密码
 立即注册

QQ登录

只需一步,快速开始

查看: 2971|回复: 0

一份9层宾馆空调通风及防排烟系统设计CAD施工图纸(节能设计)

[复制链接]

0

主题

0

帖子

1597

积分

超级版主

Rank: 8Rank: 8

积分
1597
发表于 2020-2-29 21:24:06 | 显示全部楼层 |阅读模式

该帖子包含附件可供参考学习和下载,您可以 搜索 更多您想要的资源


  • 附件设计说明:有
  • 建筑类别:酒店
  • 建筑高度类型:高层建筑
  • 建筑设计面积:19613平方米
  • 建筑地上层数:9层
  • 建筑地下层数:2层
  • 图纸设计深度:施工图
  • 参考图纸:24张
  • 设计年代:近代
  • 设计内容:空调,通风,防排烟,冷热源
  • 冷热源:电动压缩式冷水机组
  • 空调系统:全空气系统,空气-水系统
  • 全空气系统:单风道
  • 水系统:复式泵,变流量,四管制,异程式,开式
  • 送风方式:散流器送风
  • 项目所在地:上海

附件详情

一、项目概要:

该项目位于上海市,是一个宾馆接待大楼,地上共9层,地下2层,本项目总建筑面积: 19613平方米,其中:地上建筑面积 14793平方米,地下建筑面积 4820平方米,建筑高度:35.00m。图纸内容包含设计施工说明,主要设备材料表及图例,冷冻机房水系统流程图,热水机组水系统流程图,正压送风系统原理图,正压送风口布置详图,空调通风系统平面图等...

二、空调系统:

1.冷热源:水冷电制冷机组...
2.风系统:采用风机盘管加新风系统和低速单风道全空气系统...

3.水系统:水系统采用二次泵变流量系统和四管制异程式系统,开式膨胀水箱定压方式...

三、通风排烟系统:

1.通风系统:地下变配电房采用机械排风方式,通风量按设备发热量计算;地下车库采用机械排风兼排烟的通风方式,按6次/h换气次数计算通风量;水泵房采用自然进风机械排风的通风方式,通风量按4次/h换气次数计算;浴厕均设有机械排风系统,通风量按10次/h换气次数计算...

2.防排烟系统:不满足规范自然通风条件的楼梯间设置正压送风系统。内走道排烟:疏散距离超过20米的封闭内走道设置机械排烟系统;地下一层车库设置机械排烟系统,排烟量按换气次数为6次/时计算,所有采用自然排烟的房间可开启的外窗面积大于地面面积的2%,并满足室内任一点到自然排烟口距离不大于30米...

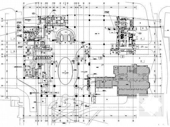
地下一层空调通风系统平面图

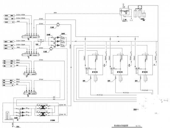
热水机组水系统流程图

一层空调通风系统平面图

二层空调通风系统平面图

九层空调通风系统平面图

正压送风系统原理图

冷冻机房水系统流程图

第 1 张图
第 1 张图
第 2 张图
第 2 张图
第 3 张图
第 3 张图
第 4 张图
第 4 张图
第 5 张图
第 5 张图
第 6 张图
第 6 张图
第 7 张图
第 7 张图
第 8 张图
第 8 张图
以上是部分图纸截图,有些图框没有放大后再截图,可能截图里不清晰或者看不到内容,您可以在下载后查看具体内容

温馨提示:该资料由网友于2020-2-29 21:24:06上传分享,您可以下载该资料进行学习和参考,如有侵权内容或者违法行为,请及时联系站长删除,如有疑问,您可以在暖通空调专区发帖交流相关知识。

附件2099v11edecwf2cs0100s2fe00.rar

3.96 MB

下载  售价: 100 积分    赚积分

相关帖子

回复

使用道具 举报

您需要登录后才可以回帖 登录 | 立即注册

本版积分规则

QQ|联系我们|豆豆网 ( 苏ICP备20004746号-1 )

GMT+8, 2025-12-31 19:12 , Processed in 0.065380 second(s), 27 queries .

本站所有内容均由网友自主分享,如有侵权内容或者违法行为,请及时联系站长删除,本站将根据实际情况进行积分奖励!请查看:免责声明

快速回复 返回顶部 返回列表