豆豆网

 找回密码
 立即注册

QQ登录

只需一步,快速开始

查看: 1683|回复: 0

[CAD]带32吨和20吨行车钢结构厂房结构图纸

[复制链接]

0

主题

0

帖子

1075

积分

超级版主

Rank: 8Rank: 8

积分
1075
发表于 2020-2-21 11:10:13 | 显示全部楼层 |阅读模式

该帖子包含附件可供参考学习和下载,您可以 搜索 更多您想要的资源


  • 建筑类别:工业建筑
  • 建筑高度类型:单层建筑
  • 厂房建筑高度类型:单层厂房
  • 建筑地上层数:1层
  • 图纸设计深度:施工图
  • 民用建筑设计使用年限:50年
  • 建筑设计结构形式:钢结构
  • 钢结构:门式刚架
  • 基础形式 :独立基础
  • 结构安全等级:二级
  • 地基基础设计等级:丙级
  • 抗震设防烈度:6度抗震
  • 风压:0.30kN/平方米
  • 雪压:0.30kN/平方米
  • 参考图纸:15张

附件详情

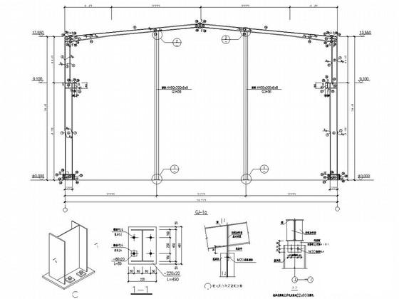
该项目是门式刚架结构厂房项目,32吨和20吨行车组合计算,抗震设防烈度为6度,包括:钢结构设计施工总说明,底层平面图,屋顶排水图,立面图,剖面图,预埋锚栓布置图,屋面结构布置图,吊车梁平面结构布置图,屋面檩条布置图,柱间支撑布置图,刚架图,制动桁架图等共计15张图。

底层平面图

预埋锚栓布置图

制动桁架图

屋面檩条布置图

钢结构厂房结构图 - 1
第 1 张图
钢结构厂房结构图 - 2
第 2 张图
钢结构厂房结构图 - 3
第 3 张图
钢结构厂房结构图 - 4
第 4 张图
钢结构厂房结构图 - 5
第 5 张图
以上是部分图纸截图,有些图框没有放大后再截图,可能截图里不清晰或者看不到内容,您可以在下载后查看具体内容

温馨提示:该资料由网友于2020-2-21 11:10:13上传分享,您可以下载该资料进行学习和参考,如有侵权内容或者违法行为,请及时联系站长删除,如有疑问,您可以在结构设计专区发帖交流相关知识。

附件2099v11edfccfde1cce0c0dd21.rar

1.68 MB

下载  售价: 100 积分    赚积分

钢结构厂房结构图相关帖子

回复

使用道具 举报

您需要登录后才可以回帖 登录 | 立即注册

本版积分规则

QQ|联系我们|豆豆网 ( 苏ICP备20004746号-1 )

GMT+8, 2025-12-29 00:38 , Processed in 0.016945 second(s), 27 queries .

本站所有内容均由网友自主分享,如有侵权内容或者违法行为,请及时联系站长删除,本站将根据实际情况进行积分奖励!请查看:免责声明

快速回复 返回顶部 返回列表