豆豆网

 找回密码
 立即注册

QQ登录

只需一步,快速开始

查看: 2236|回复: 0

一份甲级设计院游泳馆电气CAD施工图纸

[复制链接]

0

主题

0

帖子

1322

积分

超级版主

Rank: 8Rank: 8

积分
1322
发表于 2020-2-21 21:38:49 | 显示全部楼层 |阅读模式

该帖子包含附件可供参考学习和下载,您可以 搜索 更多您想要的资源


  • 建筑类别:体育
  • 建筑高度类型:多层建筑
  • 建筑设计结构形式:钢结构
  • 建筑设计面积:26000平方米
  • 建筑地上层数:3层
  • 建筑地下层数:1层
  • 图纸设计深度:施工图
  • 参考图纸:37张
  • 设计年代:近代
  • 地下室用途:设备用房
  • 负荷等级:一级
  • 防雷等级:第二类
  • 接地方式:TN-S
  • 项目所在地:江苏
  • 强电设计: 供配电系统 ,配变电所,应急电源,低压配电,电气照明,建筑物防雷,接地安全,继电保护

附件详情

  • 1、图纸设计说明
  • 2、10/0.4kV变、配电系统
  • 3、照明及控制系统
  • 4、 照明平面图
  • 5、动力设备电力布置图
  • 6、防雷保护、安全措施及接地

附件详情

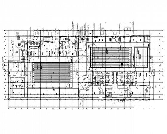
该附件是江苏某体育区游泳馆的电气施工图纸,总共37张,图纸设计清晰,特别是游泳池特殊的 防雷接地 设计,非常具有参考价值,同时附带详细的负荷计算书!
该项目游泳馆,设置1600坐席,与同期建设的体育馆相连接;设计年限为50年,建筑总高约为23.2m,为三层建筑,总建筑面积约为2.6万平方米。
该资料包括建设红线内的以下内容: 10/0.4kV变、配电系统; 动力系统;照明及控制系统;防雷保护、安全措施及接地系统。

防雷接地平面图

马道电力平面图

高低压配电系统图

高压联锁切换系统图

控制原理图

节点详图

甲级游泳馆 - 1
第 1 张图
甲级游泳馆 - 2
第 2 张图
甲级游泳馆 - 3
第 3 张图
甲级游泳馆 - 4
第 4 张图
甲级游泳馆 - 5
第 5 张图
甲级游泳馆 - 6
第 6 张图
以上是部分图纸截图,有些图框没有放大后再截图,可能截图里不清晰或者看不到内容,您可以在下载后查看具体内容

温馨提示:该资料由网友于2020-2-21 21:38:49上传分享,您可以下载该资料进行学习和参考,如有侵权内容或者违法行为,请及时联系站长删除,如有疑问,您可以在电气工程专区发帖交流相关知识。

附件2099v11edeeeccwc0wfef0scfs.rar

6.37 MB

下载  售价: 100 积分    赚积分

甲级游泳馆相关帖子

回复

使用道具 举报

您需要登录后才可以回帖 登录 | 立即注册

本版积分规则

QQ|联系我们|豆豆网 ( 苏ICP备20004746号-1 )

GMT+8, 2025-12-28 05:49 , Processed in 0.035973 second(s), 28 queries .

本站所有内容均由网友自主分享,如有侵权内容或者违法行为,请及时联系站长删除,本站将根据实际情况进行积分奖励!请查看:免责声明

快速回复 返回顶部 返回列表