豆豆网

 找回密码
 立即注册

QQ登录

只需一步,快速开始

查看: 779|回复: 0

一份6层钢筋混凝土结构高校图书馆强电系统CAD施工图纸

[复制链接]

0

主题

0

帖子

1384

积分

超级版主

Rank: 8Rank: 8

积分
1384
发表于 2020-2-22 10:29:52 | 显示全部楼层 |阅读模式

该帖子包含附件可供参考学习和下载,您可以 搜索 更多您想要的资源


  • 建筑类别:文化
  • 建筑高度类型:多层建筑
  • 建筑设计结构形式:钢筋混凝土结构
  • 建筑地上层数:6层
  • 建筑地下层数:1层
  • 图纸设计深度:施工图
  • 参考图纸:27张
  • 强电设计: 供配电系统 ,配变电所,低压配电,电气照明,建筑物防雷,接地安全

附件详情

  • 1、电气设计说明
  • 2、配电箱系统图
  • 3、插座箱系统图
  • 4、低压供配电系统图
  • 5、 照明平面图
  • 6、电力平面图
  • 7、防雷接地平面图

附件详情

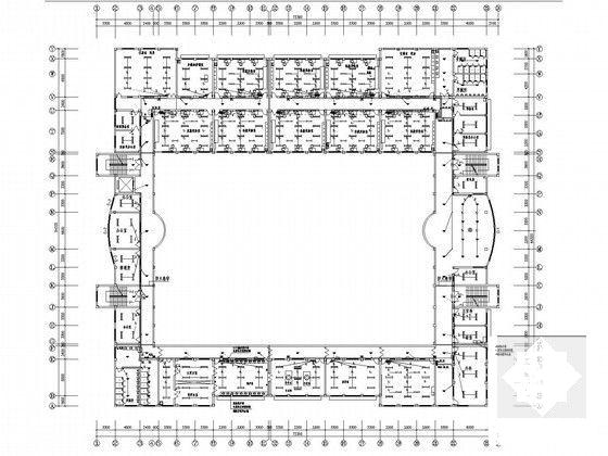
该附件是六层高校图书馆强电系统施工图纸,总共27张。
该项目为多层图书馆公共建筑,地下一层,地上六层。
设计内容包括:配电系统、照明系统、电力系统等。

二层电力平面图

配电房低压供配电系统图

三层 弱电平面图

四层照明平面图

五层动力平面图

配电箱系统图

高校图书馆 - 1
第 1 张图
高校图书馆 - 2
第 2 张图
高校图书馆 - 3
第 3 张图
高校图书馆 - 4
第 4 张图
高校图书馆 - 5
第 5 张图
高校图书馆 - 6
第 6 张图
以上是部分图纸截图,有些图框没有放大后再截图,可能截图里不清晰或者看不到内容,您可以在下载后查看具体内容

温馨提示:该资料由网友于2020-2-22 10:29:52上传分享,您可以下载该资料进行学习和参考,如有侵权内容或者违法行为,请及时联系站长删除,如有疑问,您可以在建筑施工专区发帖交流相关知识。

附件2099v11edecefffc2w0csde2fs.rar

2.95 MB

下载  售价: 100 积分    赚积分

高校图书馆相关帖子

回复

使用道具 举报

您需要登录后才可以回帖 登录 | 立即注册

本版积分规则

QQ|联系我们|豆豆网 ( 苏ICP备20004746号-1 )

GMT+8, 2025-12-24 01:13 , Processed in 0.016906 second(s), 27 queries .

本站所有内容均由网友自主分享,如有侵权内容或者违法行为,请及时联系站长删除,本站将根据实际情况进行积分奖励!请查看:免责声明

快速回复 返回顶部 返回列表