豆豆网

 找回密码
 立即注册

QQ登录

只需一步,快速开始

查看: 651|回复: 0

一份一类高层地上6层钢筋混凝土结构建筑强电系统CAD施工图纸(地下4层)

[复制链接]

0

主题

0

帖子

1390

积分

超级版主

Rank: 8Rank: 8

积分
1390
发表于 2020-2-16 11:16:00 | 显示全部楼层 |阅读模式

该帖子包含附件可供参考学习和下载,您可以 搜索 更多您想要的资源


  • 建筑类别:商业
  • 建筑高度类型:高层建筑
  • 建筑设计结构形式:钢筋混凝土结构
  • 建筑地上层数:6层
  • 建筑地下层数:4层
  • 图纸设计深度:施工图
  • 参考图纸:70张
  • 地下室用途:商业,车库,设备用房,其它
  • 节点大样:弱电设备,其它
  • 负荷等级:一级
  • 防雷等级:第二类
  • 火灾保护分级:一级
  • 安全防范:一级
  • 有线广播:服务性,火灾应急
  • 接地方式:TN-C-S
  • 项目所在地:湖北
  • 强电设计: 供配电系统 ,配变电所,低压配电,电气照明,建筑物防雷,接地安全,其它

附件详情

  • 1、电气设计说明
  • 2、配电箱接线系统图
  • 3、低压配电干线系统图
  • 4、配电系统图
  • 5、低压配电系统图
  • 6、动力配线平面图
  • 7、配电房设备布置平面图
  • 8、电力平面图
  • 9、 照明平面图
  • 10、强电井大样图
  • 11、防雷接地平面图

附件详情

该附件是[武汉]一类高层建筑强电系统施工图纸(地下四层),总共70张。
该项目地上部分属于一类高层建筑;建筑主体高度最高约220m,裙房高度26.6m;耐火等级为一级。建筑设计结构形式为框架剪力墙结构;现浇楼板;基础形式为桩、承台基础。
本次出图共分为5个子项:A,B1,B2,B3(4栋塔楼)及S(商业裙房),D(地下室).
设计包括: 1)10/0.4kV变配电系统;2)电力配电系统;3) 照明系统 ;4)建筑物防雷、接地系统及安全措施。

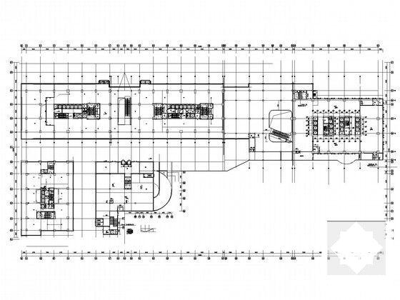
电力平面图

二-五层电力平面

照明平面图

强电井大样图

配电箱接线系统图(一)

商业1#变配电房低压配电系统图(四)

商业低压配电干线系统图(一)

配电系统图一

建筑强电系统 - 1
第 1 张图
建筑强电系统 - 2
第 2 张图
建筑强电系统 - 3
第 3 张图
建筑强电系统 - 4
第 4 张图
建筑强电系统 - 5
第 5 张图
建筑强电系统 - 6
第 6 张图
以上是部分图纸截图,有些图框没有放大后再截图,可能截图里不清晰或者看不到内容,您可以在下载后查看具体内容

温馨提示:该资料由网友于2020-2-16 11:16:00上传分享,您可以下载该资料进行学习和参考,如有侵权内容或者违法行为,请及时联系站长删除,如有疑问,您可以在建筑施工专区发帖交流相关知识。

附件2099v11edecf20csf1ccfef0f0.rar

7.68 MB

下载  售价: 100 积分    赚积分

建筑强电系统相关帖子

回复

使用道具 举报

您需要登录后才可以回帖 登录 | 立即注册

本版积分规则

QQ|联系我们|豆豆网 ( 苏ICP备20004746号-1 )

GMT+8, 2025-12-28 19:39 , Processed in 0.016659 second(s), 27 queries .

本站所有内容均由网友自主分享,如有侵权内容或者违法行为,请及时联系站长删除,本站将根据实际情况进行积分奖励!请查看:免责声明

快速回复 返回顶部 返回列表