豆豆网

 找回密码
 立即注册

QQ登录

只需一步,快速开始

查看: 1399|回复: 0

4层2号框架结构标准厂房幕墙施工大样图 49Pcad平面图及立面图

[复制链接]

0

主题

0

帖子

1486

积分

超级版主

Rank: 8Rank: 8

积分
1486
发表于 2021-10-26 20:58:35 | 显示全部楼层 |阅读模式

该帖子包含附件可供参考学习和下载,您可以 搜索 更多您想要的资源


  • 幕墙面板材料:玻璃幕墙,金属幕墙
  • 幕墙支承结构:构件式幕墙
  • 玻璃幕墙:半隐框,明框
  • 金属幕墙:单层铝板
  • 建筑类别:工业建筑
  • 建筑高度类型:多层建筑
  • 建筑地上层数:4层
  • 图纸设计深度:施工图
  • 民用建筑设计使用年限:25年
  • 建筑设计结构形式:钢筋混凝土结构
  • 钢筋混凝土结构:框架
  • 结构安全等级:二级
  • 抗震设防烈度:6度抗震
  • 风压:0.3kN/平方米
  • 参考图纸:49张
  • 设计年代:近代
该附件为:2号框架结构标准厂房横明竖隐玻璃 幕墙施工图 2017 49P,格式为CAD版本。
一、简介:
该项目位于贵州,框架结构,幕墙工程标高21.2m,幕墙结构设计合理使用年限25年。设计范围:横明竖隐玻璃幕墙、明框玻璃幕墙、铝单板幕墙、钢结构玻璃采光顶。带幕墙计算书
二、目录
设计说明、一层幕墙平面图、二层幕墙平面图、三层幕墙平面图、屋顶层幕墙平面图、幕墙立面图、节点索引大样图、型材表、后置埋件三维安装图、立柱连接大样图、 节点图 、铝板加工技术参数、玻璃幕墙伸缩缝
三、相关图片:
2号轴立面展开图1.jpg
2号轴立面展开图2.jpg
2号轴立面展开图3.jpg
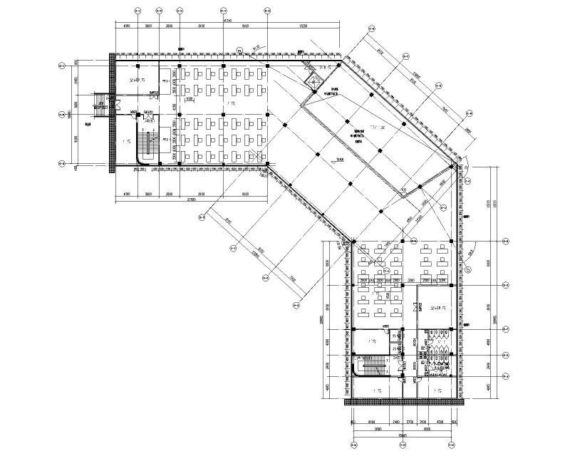
2号一层幕墙平面图.jpg
2号二层幕墙平面图.jpg
2号三层幕墙平面图.jpg
2号轴立面展开图1
2号轴立面展开图1
2号轴立面展开图2
2号轴立面展开图2
2号轴立面展开图3
2号轴立面展开图3
2号一层幕墙平面图
2号一层幕墙平面图
2号二层幕墙平面图
2号二层幕墙平面图
2号三层幕墙平面图
2号三层幕墙平面图
以上是部分图纸截图,有些图框没有放大后再截图,可能截图里不清晰或者看不到内容,您可以在下载后查看具体内容

附件2099v11cdfcfcdsd1scc0cs.zip

9.68 MB

下载  售价: 100 积分    赚积分

相关帖子

回复

使用道具 举报

您需要登录后才可以回帖 登录 | 立即注册

本版积分规则

QQ|联系我们|豆豆网 ( 苏ICP备20004746号-1 )

GMT+8, 2025-12-16 19:31 , Processed in 0.131968 second(s), 27 queries .

本站所有内容均由网友自主分享,如有侵权内容或者违法行为,请及时联系站长删除,本站将根据实际情况进行积分奖励!请查看:免责声明

快速回复 返回顶部 返回列表