豆豆网

 找回密码
 立即注册

QQ登录

只需一步,快速开始

查看: 1466|回复: 0

多层工厂建筑施工方案图纸CAD平面图及剖面图,立面图

[复制链接]

0

主题

0

帖子

904

积分

超级版主

Rank: 8Rank: 8

积分
904
发表于 2021-10-26 20:58:45 | 显示全部楼层 |阅读模式

该帖子包含附件可供参考学习和下载,您可以 搜索 更多您想要的资源


  • 建筑特征:多跨
  • 建筑高度类型:多层建筑
  • 图纸设计深度:施工图
  • 项目所在地:贵州
  • 图纸设计流派:现代
  • 图纸设计格式:CAD2000
  • 参考图纸:30张
  • 设计年代:近代
[贵州]多层工厂 建筑施工图 CAD2020
设计详细说明:
四层建筑厂房
内容包含:
一、建筑平面图二、建筑立面图三、建筑剖面图四、建筑详图 五、建筑设计说明六、建筑节能设计说明七、门窗表八、做法一览表
立面图.jpg
一层平面图.jpg
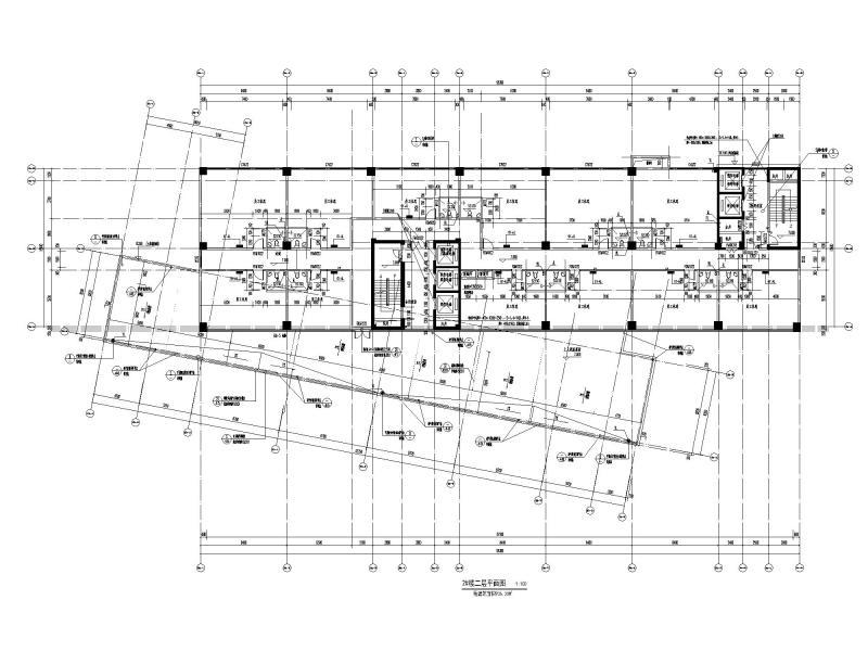
二层平面图.jpg
三层平面图.jpg
立面图1.jpg
立面2.jpg
立面图3.jpg
剖面图.jpg
立面图
立面图
一层平面图
一层平面图
二层平面图
二层平面图
三层平面图
三层平面图
立面图1
立面图1
立面2
立面2
立面图3
立面图3
剖面图
剖面图
以上是部分图纸截图,有些图框没有放大后再截图,可能截图里不清晰或者看不到内容,您可以在下载后查看具体内容

附件2099v11cdfcfc021011s1cc.rar

14.9 MB

下载  售价: 100 积分    赚积分

相关帖子

回复

使用道具 举报

您需要登录后才可以回帖 登录 | 立即注册

本版积分规则

QQ|联系我们|豆豆网 ( 苏ICP备20004746号-1 )

GMT+8, 2025-11-16 22:16 , Processed in 0.025484 second(s), 27 queries .

本站所有内容均由网友自主分享,如有侵权内容或者违法行为,请及时联系站长删除,本站将根据实际情况进行积分奖励!请查看:免责声明

快速回复 返回顶部 返回列表