豆豆网

 找回密码
 立即注册

QQ登录

只需一步,快速开始

查看: 1222|回复: 0

6层框架结构教学楼结构施工大样图 27Pcad平面布置图

[复制链接]

0

主题

0

帖子

1593

积分

超级版主

Rank: 8Rank: 8

积分
1593
发表于 2021-10-26 20:58:38 | 显示全部楼层 |阅读模式

该帖子包含附件可供参考学习和下载,您可以 搜索 更多您想要的资源


  • 建筑类别:教育
  • 建筑高度类型:多层建筑
  • 建筑地上层数:5层
  • 图纸设计深度:施工图
  • 民用建筑设计使用年限:50年
  • 建筑设计结构形式:钢筋混凝土结构
  • 钢筋混凝土结构:框架
  • 基础形式 :桩基础
  • 结构安全等级:二级
  • 地基基础设计等级:丙级
  • 抗震设防烈度:6度抗震
  • 风压:0.3kN/平方米
  • 雪压:0.3kN/平方米
  • 参考图纸:27张
  • 设计年代:近代
该附件为:框架结构教学楼 结构施工图 2017 27P,格式为CAD版本。
一、简介:
该项目位于贵州,中学教学楼 实验楼 艺术楼、信息楼、图书楼,框架结构,地上5层(局部6层),桩基础
二、目录
结构设计总说明、桩基设计说明、基础平面布置图、基础梁平法施工图、基础底板平法施工图、地下室构件大样、柱平法施工图、梁平法施工图、板平法施工图、基础梁平法施工图、楼梯施工图、墙身大样图、节点大样图
三、相关图片:
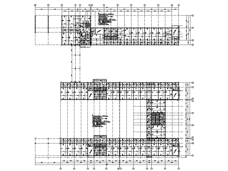
11.67梁平法施工图.png
11.67板平法施工图.png
-4.5基础梁平法施工图.png
-0.03板平法施工图.png
-3.95基础梁平法施工图.png
-3.95基础底板平法施工图.png
11.67梁平法施工图
11.67梁平法施工图
11.67板平法施工图
11.67板平法施工图
-4.5基础梁平法施工图
-4.5基础梁平法施工图
-0.03板平法施工图
-0.03板平法施工图
-3.95基础梁平法施工图
-3.95基础梁平法施工图
-3.95基础底板平法施工图
-3.95基础底板平法施工图
以上是部分图纸截图,有些图框没有放大后再截图,可能截图里不清晰或者看不到内容,您可以在下载后查看具体内容

附件2099v11cdfcfcsc0efdc211.dwg

4.03 MB

下载  售价: 100 积分    赚积分

相关帖子

回复

使用道具 举报

您需要登录后才可以回帖 登录 | 立即注册

本版积分规则

QQ|联系我们|豆豆网 ( 苏ICP备20004746号-1 )

GMT+8, 2025-11-18 19:26 , Processed in 0.018783 second(s), 28 queries .

本站所有内容均由网友自主分享,如有侵权内容或者违法行为,请及时联系站长删除,本站将根据实际情况进行积分奖励!请查看:免责声明

快速回复 返回顶部 返回列表