豆豆网

 找回密码
 立即注册

QQ登录

只需一步,快速开始

查看: 1503|回复: 0

4层钢筋混凝土框架结构教学楼施工图纸cad平面布置图

[复制链接]

0

主题

0

帖子

1085

积分

超级版主

Rank: 8Rank: 8

积分
1085
发表于 2021-10-28 21:20:29 | 显示全部楼层 |阅读模式

该帖子包含附件可供参考学习和下载,您可以 搜索 更多您想要的资源


  • 建筑类别:教育
  • 建筑高度类型:多层建筑
  • 建筑地上层数:4层
  • 建筑地下层数:1层
  • 图纸设计深度:施工图
  • 民用建筑设计使用年限:50年
  • 建筑设计结构形式:钢筋混凝土结构
  • 钢筋混凝土结构:框架
  • 基础形式 :独立基础,桩基础
  • 结构安全等级:二级
  • 地基基础设计等级:丙级
  • 抗震设防烈度:6度抗震
  • 风压:0.3kN/平方米
  • 雪压:0.2kN/平方米
  • 地下室功能:人防
  • 参考图纸:30张
  • 设计年代:近代
该附件为:钢筋混凝土框架结构教学楼施工图2019,格式为CAD版本。
一、简介:
该项目位于贵阳,钢筋混凝土框架结构教学楼,地上四层,局部地下1层,总高度16.5m,多层建筑
人防工程设计防护级别为:甲类常6级及核6级。
二、目录:
结构设计总说明、基础及地下室设计、桩基设计说明、基础平面布置图、基础梁平法施工图、柱平法施工图、梁平法施工图、板平法施工图、楼梯 结构施工图 。。。
三、相关图片:
4.450梁平法施工图(X向).png
8.350梁平法施工图(X向).png
4.450板平法施工图.png
4.450~12.250柱平法施工图.png
基础梁平法施工图.png
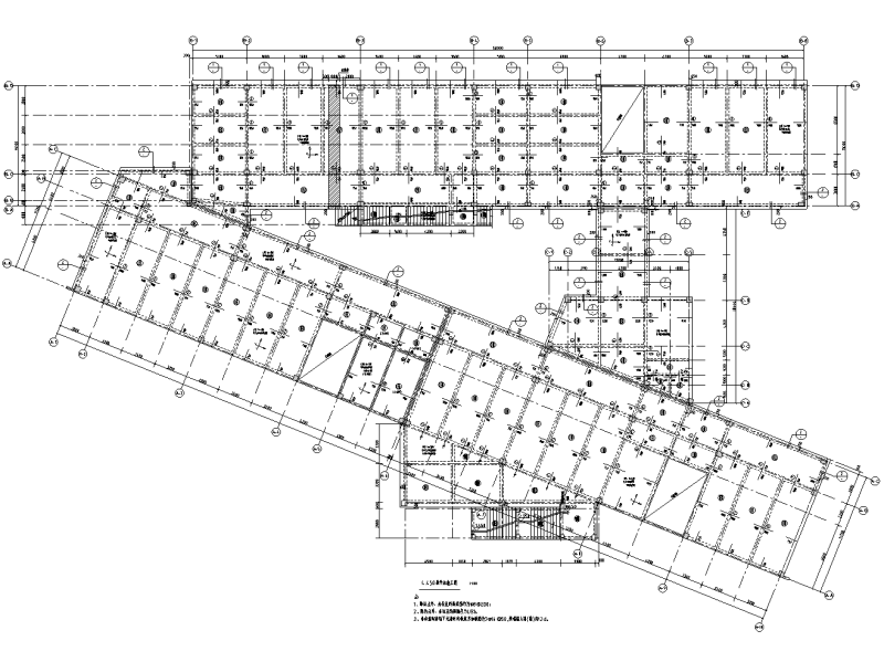
基础平面布置图.png
4.450梁平法施工图(X向)
4.450梁平法施工图(X向)
8.350梁平法施工图(X向)
8.350梁平法施工图(X向)
4.450板平法施工图
4.450板平法施工图
4.450~12.250柱平法施工图
4.450~12.250柱平法施工图
基础梁平法施工图
基础梁平法施工图
基础平面布置图
基础平面布置图
以上是部分图纸截图,有些图框没有放大后再截图,可能截图里不清晰或者看不到内容,您可以在下载后查看具体内容

附件2099v11cddf2cccec0cfdfc.dwg

2.15 MB

下载  售价: 100 积分    赚积分

相关帖子

回复

使用道具 举报

您需要登录后才可以回帖 登录 | 立即注册

本版积分规则

QQ|联系我们|豆豆网 ( 苏ICP备20004746号-1 )

GMT+8, 2025-12-26 02:40 , Processed in 0.015487 second(s), 27 queries .

本站所有内容均由网友自主分享,如有侵权内容或者违法行为,请及时联系站长删除,本站将根据实际情况进行积分奖励!请查看:免责声明

快速回复 返回顶部 返回列表