豆豆网

 找回密码
 立即注册

QQ登录

只需一步,快速开始

查看: 1347|回复: 0

17层安置区工程燃气管道施工图纸cad平面图

[复制链接]

0

主题

0

帖子

672

积分

超级版主

Rank: 8Rank: 8

积分
672
发表于 2021-11-4 21:33:50 | 显示全部楼层 |阅读模式

该帖子包含附件可供参考学习和下载,您可以 搜索 更多您想要的资源


  • 建筑类别:住宅
  • 建筑高度类型:高层建筑
  • 建筑设计结构形式:钢筋混凝土结构
  • 建筑设计面积:59463平方米
  • 建筑地上层数:17层
  • 图纸设计深度:施工图
  • 图纸设计格式:CAD2000,PDF
  • 设计年代:近代
  • 项目所在地:广东
1、项目概要:该项目为 广东省安置区工程燃气管道施工图2019 ;项目概况:本项目建筑占地面积为20939.76平方米,总建筑面积59463平方米。含2栋17层的住宅,以及1栋5层的邻里中心、一栋幼儿园。地下建筑二层,为机动车库、非机动车库、设备用房等。
2、设计范围:与已设计或施工的主干管连接:接拟建中压市政燃气管
部分图纸展示:
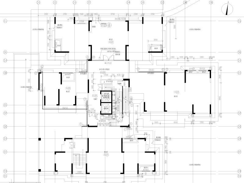
1-1#楼首层燃气管道平面图.jpg
2-1#楼首层燃气管道平面图.jpg
2-1#楼燃气管道透视图.jpg
1-1#楼首层燃气管道平面图
1-1#楼首层燃气管道平面图
2-1#楼首层燃气管道平面图
2-1#楼首层燃气管道平面图
2-1#楼燃气管道透视图
2-1#楼燃气管道透视图
以上是部分图纸截图,有些图框没有放大后再截图,可能截图里不清晰或者看不到内容,您可以在下载后查看具体内容

附件2099v11cdc0ds0fecssdsw0.zip

13.92 MB

下载  售价: 100 积分    赚积分

相关帖子

回复

使用道具 举报

您需要登录后才可以回帖 登录 | 立即注册

本版积分规则

QQ|联系我们|豆豆网 ( 苏ICP备20004746号-1 )

GMT+8, 2025-11-25 06:36 , Processed in 0.014954 second(s), 27 queries .

本站所有内容均由网友自主分享,如有侵权内容或者违法行为,请及时联系站长删除,本站将根据实际情况进行积分奖励!请查看:免责声明

快速回复 返回顶部 返回列表