豆豆网

 找回密码
 立即注册

QQ登录

只需一步,快速开始

查看: 1283|回复: 0

4层市殡仪馆建设项目-主体电施部分全套施工图纸cad平面图

[复制链接]

0

主题

0

帖子

1244

积分

超级版主

Rank: 8Rank: 8

积分
1244
发表于 2021-11-24 20:14:41 | 显示全部楼层 |阅读模式

该帖子包含附件可供参考学习和下载,您可以 搜索 更多您想要的资源


  • 建筑类别:办公
  • 建筑高度类型:多层建筑
  • 建筑设计面积:17404.98平方米
  • 建筑地上层数:4层
  • 建筑地下层数:1层
  • 图纸设计深度:施工图
  • 图纸设计格式:CAD2000
  • 设计年代:近代
  • 负荷等级:一级,二级,三级
  • 防雷等级:第三类
  • 火灾保护分级:一级
  • 安全防范:三级
  • 接地方式:TN-S
  • 项目所在地:重庆
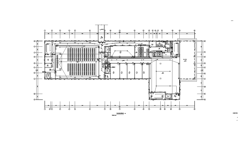
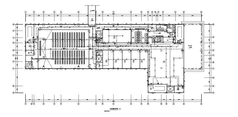
该附件为重庆殡仪馆主体电施全套图纸,设计范围包括: 1、变配电系统; 2、动力、照明配电系统; 3、防雷及接地系统; 4、火灾报警系统; 5、有线电视、光纤到户系统;
照明平面图.png
火灾自动报警平面图.png
空调配电平面图.png
竖向配电系统.png
消防水泵配电系统图.png
配电系统图.png
照明平面图
照明平面图
火灾自动报警平面图
火灾自动报警平面图
空调配电平面图
空调配电平面图
竖向配电系统
竖向配电系统
消防水泵配电系统图
消防水泵配电系统图
配电系统图
配电系统图
以上是部分图纸截图,有些图框没有放大后再截图,可能截图里不清晰或者看不到内容,您可以在下载后查看具体内容

附件2099v11cde2cfdee10scs2c.zip

23.43 MB

下载  售价: 100 积分    赚积分

相关帖子

回复

使用道具 举报

您需要登录后才可以回帖 登录 | 立即注册

本版积分规则

QQ|联系我们|豆豆网 ( 苏ICP备20004746号-1 )

GMT+8, 2025-12-18 14:25 , Processed in 0.016018 second(s), 27 queries .

本站所有内容均由网友自主分享,如有侵权内容或者违法行为,请及时联系站长删除,本站将根据实际情况进行积分奖励!请查看:免责声明

快速回复 返回顶部 返回列表