豆豆网

 找回密码
 立即注册

QQ登录

只需一步,快速开始

查看: 3224|回复: 0

一份综合体育馆空调通风设计CAD施工图纸

[复制链接]

0

主题

0

帖子

1390

积分

超级版主

Rank: 8Rank: 8

积分
1390
发表于 2020-2-26 21:08:57 | 显示全部楼层 |阅读模式

该帖子包含附件可供参考学习和下载,您可以 搜索 更多您想要的资源


  • 附件设计说明:无
  • 建筑类别:体育
  • 建筑设计面积:39416平方米
  • 图纸设计深度:施工图
  • 参考图纸:12张
  • 设计年代:近代
  • 设计内容:空调,通风,机房
  • 冷热源:溴化锂吸收式机组
  • 空调系统:空气-水系统
  • 项目所在地:四川

附件详情

  • 资料目录
  • 设计说明及材料表
  • 通风图
  • 空调剖面图
  • 空调图
  • 夹层顶空调回风口平面图
  • 空调回风管平面图
  • 空调水管布置图
  • 空调系统图
  • 通风系统图

附件详情

资料介绍:本图纸为四川某综合体育馆空调通风设计施工图,建筑总面积39416平方米,其中车库面积为12360平方米,商业9487平方米,体育馆面积为12569平方米,游泳馆面积为5000平方米。
设计内容:该项目为地下车库、设备用房、商场,地面商业用房、办公用房、设备用房、游泳池、篮球场的通风、空调系统,以及整个建筑物的防排烟系统、楼梯间的正压送风。
空调系统:该项目总空调面积:18264.09m2。总冷负荷:4601.71kw,冷指标:251.90 w/平方米,热负荷2494.30kW。热指标:136.57W/平方米。
1、其中体育馆建筑面积7000平方米,设计冷负荷估计1750kW,冷指标:250w/平方米,热负荷1100kW。热指标:157W/平方米。(办公室冷指标为150w/平方米,热指标为110w/平方米
2、其中商业建筑面积为9487平方米,设计冷负荷估计2100kW,冷指标:221w/平方米,热负荷1400kW。热指标:147W/平方米。
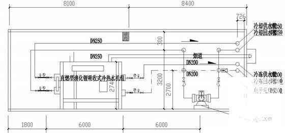
3、体育馆选用燃气直燃型溴化锂吸收式冷热水机组,ZX-233HZ一台,Q=2330KW Q热=1856KW COP=1.36,变频冷冻泵KHB-150-315A,L=374m3/h,H=28M,变频冷却泵KHB-300-200,L=720m3/h,H=28M。(一备一用)
4、商业选用选用燃气直燃型溴化锂吸收式冷热水机组,ZX-233HZ一台,Q=2330KW Q热=1856KW COP=1.36,变频冷冻泵KHB-150-315A,L=374m3/h,H=28M,变频冷却泵KHB-300-200,L=720m3/h,H=28M。(一备一用)
5、游泳馆选用三集一体机,制冷量:190kw制热量:229kw余压:800pa(2台)冬季热源由体育馆的冷冻机供给热源。
6、体育馆采用横流式冷却塔LRCM-HS-700,L=700m3/h,商业采用横流式冷却塔LRCM-HS-700,L=700m3/h……



,图纸共16张。


空调水系统图

空调器透视图

冷冻机房剖面图

通风图

排烟系统图

马道空调布置图

第 1 张图
第 1 张图
第 2 张图
第 2 张图
第 3 张图
第 3 张图
第 4 张图
第 4 张图
第 5 张图
第 5 张图
第 6 张图
第 6 张图
以上是部分图纸截图,有些图框没有放大后再截图,可能截图里不清晰或者看不到内容,您可以在下载后查看具体内容

温馨提示:该资料由网友于2020-2-26 21:08:57上传分享,您可以下载该资料进行学习和参考,如有侵权内容或者违法行为,请及时联系站长删除,如有疑问,您可以在暖通空调专区发帖交流相关知识。

附件2099v11ede2ec2cw02cc2de2c1.rar

3.77 MB

下载  售价: 100 积分    赚积分

相关帖子

回复

使用道具 举报

您需要登录后才可以回帖 登录 | 立即注册

本版积分规则

QQ|联系我们|豆豆网 ( 苏ICP备20004746号-1 )

GMT+8, 2025-12-20 23:28 , Processed in 0.017401 second(s), 27 queries .

本站所有内容均由网友自主分享,如有侵权内容或者违法行为,请及时联系站长删除,本站将根据实际情况进行积分奖励!请查看:免责声明

快速回复 返回顶部 返回列表