豆豆网

 找回密码
 立即注册

QQ登录

只需一步,快速开始

查看: 2876|回复: 0

一份2层工业厂房空调通风设计CAD施工图纸(焓湿图)

[复制链接]

0

主题

0

帖子

1096

积分

超级版主

Rank: 8Rank: 8

积分
1096
发表于 2020-2-27 10:44:58 | 显示全部楼层 |阅读模式

该帖子包含附件可供参考学习和下载,您可以 搜索 更多您想要的资源


  • 附件设计说明:有
  • 建筑类别:工业建筑
  • 建筑高度类型:多层建筑
  • 建筑地上层数:2层
  • 图纸设计深度:施工图
  • 参考图纸:22张
  • 设计年代:近代
  • 设计内容:空调,通风,防排烟,冷热源,其它
  • 冷热源:电动压缩式冷水机组
  • 空调系统:全空气系统
  • 水系统:单式泵,双管制,异程式
  • 项目所在地:江苏

附件详情

  • 设计与施工说明
  • 主要设备规格表
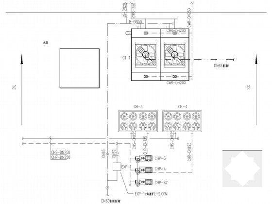
  • 冷热源系统流程图
  • 空调水管系统流程图
  • 空调通风 平面布置图
  • 空调水管平面布置图
  • 自控系统流程图
  • 防排烟系统流程图
  • 防排烟风管平面布置图
  • 制程热排气风管平面布置图
  • 机房大样图

附件详情

稿件为江苏苏州某印刷包装公司新建厂房空调通风设计施工图纸;厂房地上两层,车间、办公区采用集中式空调系统,宿舍区采用分体式空调系统。冷源采用水冷离心式冷水机组,冷冻机房设在一层冰水机房内,冷却塔采用直交流式冷却塔,选用一台冷却塔设在屋顶。开式膨胀水箱设于屋面……

,图纸共22张。

冷热源系统流程图

空调通风平面布置大样

机房大样图

空气处理焓湿图

舒适性空调箱监控系统图

空调水系统图

二层空调水管平面布置图

工业厂房空调通风 - 1
第 1 张图
工业厂房空调通风 - 2
第 2 张图
工业厂房空调通风 - 3
第 3 张图
工业厂房空调通风 - 4
第 4 张图
工业厂房空调通风 - 5
第 5 张图
工业厂房空调通风 - 6
第 6 张图
以上是部分图纸截图,有些图框没有放大后再截图,可能截图里不清晰或者看不到内容,您可以在下载后查看具体内容

温馨提示:该资料由网友于2020-2-27 10:44:58上传分享,您可以下载该资料进行学习和参考,如有侵权内容或者违法行为,请及时联系站长删除,如有疑问,您可以在暖通空调专区发帖交流相关知识。

附件2099v11ede2escd1dddss1ffcd.rar

2.98 MB

下载  售价: 100 积分    赚积分

工业厂房空调通风相关帖子

回复

使用道具 举报

您需要登录后才可以回帖 登录 | 立即注册

本版积分规则

QQ|联系我们|豆豆网 ( 苏ICP备20004746号-1 )

GMT+8, 2025-12-24 01:51 , Processed in 0.019686 second(s), 27 queries .

本站所有内容均由网友自主分享,如有侵权内容或者违法行为,请及时联系站长删除,本站将根据实际情况进行积分奖励!请查看:免责声明

快速回复 返回顶部 返回列表