豆豆网

 找回密码
 立即注册

QQ登录

只需一步,快速开始

查看: 1669|回复: 0

一份15层钢筋混凝土结构住宅楼强弱电CAD施工图纸(火灾自动报警系统)

[复制链接]

0

主题

0

帖子

776

积分

超级版主

Rank: 8Rank: 8

积分
776
发表于 2020-2-27 12:39:15 | 显示全部楼层 |阅读模式

该帖子包含附件可供参考学习和下载,您可以 搜索 更多您想要的资源


  • 建筑类别:住宅
  • 建筑高度类型:高层建筑
  • 建筑地上层数:15层
  • 图纸设计深度:施工图
  • 参考图纸:11张
  • 设计年代:近代
  • 项目所在地:四川
  • 强电设计:低压配电,电气照明,建筑物防雷,接地安全
  • 弱电设计: 火灾自动报警系统 ,视频监控系统,通信系统,有线电视和卫星接收系统

附件详情

  • 1、电气设计说明
  • 2、配电系统图
  • 3、电话系统
  • 4、有线电视系统
  • 5、对讲系统
  • 6、火灾自动报警系统
  • 7、消防联动控制系统
  • 8、安防系统
  • 9、照明平面图
  • 10、插座平面图
  • 11、 弱电平面图
  • 12、电气平面
  • 13、 防雷平面图

附件详情

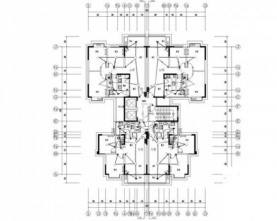
项目概要:该项目由一梯四户的三个住宅单元组成大楼建筑设计结构形式为框架边形剪力墙结构,现浇混凝土楼板。住宅建筑面积约1.58万平方米,住宅共计174套;该项目为15层单元式住宅
设计范围:220/380V配电系统;建筑物防雷、接地系统及安全措施;有线电视系统;电话系统;多功能访客对讲及燃气泄漏报警系统;火灾自动报警及消防联动控制系统;闭路监视电视系统;所有强弱电干线均从地下室桥架引来,其编号和规格详见地下室电施图。
,总共11张。

底层照明平面图

配电箱柜系统图

弱电系统图

第 1 张图
第 1 张图
第 2 张图
第 2 张图
第 3 张图
第 3 张图
第 4 张图
第 4 张图
以上是部分图纸截图,有些图框没有放大后再截图,可能截图里不清晰或者看不到内容,您可以在下载后查看具体内容

温馨提示:该资料由网友于2020-2-27 12:39:15上传分享,您可以下载该资料进行学习和参考,如有侵权内容或者违法行为,请及时联系站长删除,如有疑问,您可以在居住建筑专区发帖交流相关知识。

附件2099v11edec01sswcscdc2sdec.rar

1.57 MB

下载  售价: 100 积分    赚积分

相关帖子

回复

使用道具 举报

您需要登录后才可以回帖 登录 | 立即注册

本版积分规则

QQ|联系我们|豆豆网 ( 苏ICP备20004746号-1 )

GMT+8, 2025-12-19 21:20 , Processed in 0.017456 second(s), 27 queries .

本站所有内容均由网友自主分享,如有侵权内容或者违法行为,请及时联系站长删除,本站将根据实际情况进行积分奖励!请查看:免责声明

快速回复 返回顶部 返回列表