豆豆网

 找回密码
 立即注册

QQ登录

只需一步,快速开始

查看: 2851|回复: 0

一份5层企业办公楼空调通风设计CAD施工图纸(大院设计地源热泵)(水系统流程图)

[复制链接]

0

主题

0

帖子

1096

积分

超级版主

Rank: 8Rank: 8

积分
1096
发表于 2020-2-27 13:22:07 | 显示全部楼层 |阅读模式

该帖子包含附件可供参考学习和下载,您可以 搜索 更多您想要的资源


  • 附件设计说明:有
  • 建筑类别:办公
  • 建筑高度类型:多层建筑
  • 建筑设计面积:21959平方米
  • 建筑地上层数:5层
  • 建筑地下层数:1层
  • 图纸设计深度:施工图
  • 参考图纸:25张
  • 设计年代:近代
  • 设计内容:空调,通风,防排烟,冷热源,机房
  • 冷热源:水地源热泵
  • 空调系统:全空气系统,空气-水系统
  • 全空气系统:定风量
  • 水系统:双管制,异程式
  • 项目所在地:上海

附件详情

  • 施工图设计说明
  • 主要设备材料表
  • 图例
  • 空调及通风系统布置图
  • 地下室空调能源中心主要设备平面布置及基础图
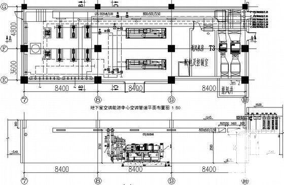
  • 地下室空调能源中心空调管道 平面布置图
  • 地下室空调能源中心空调管道剖面图
  • 通风机房详图
  • 空调机房
  • 空调水系统原理图详图
  • 空调末端水系统流程图

附件详情

稿件为上海由公司企业自用办公大楼空调通风设计施工图纸;由国内某知名设计院设计。该项目由地下一层、地上五层组成的多层建筑。总建筑面积21959m2,建筑总高度23.95m,冷耗指标:0.146KW/m2,热耗指标:0.08KW/m2.
设计内容:该办公楼的空调、通风、防排烟设计。该项目空调冷热源采用地源热泵主机与辅助冷却塔相结合的空调形式;空调水系统采用二管制异程式系统;空调风系统设计为:地下员工餐厅、一层门厅、健身房、二层报告厅等大空间采用全空气定风量低速管道系统,办公、会议等采用风机盘管加新风系统……

,图纸共25张。

空调水系统原理图

空调机房剖面

地下室空调能源中心空调管道平面布置图

三层平面空调及通风系统布置图

通风机房平面

空调通风平面大样

空调机房详图

企业办公楼设计 - 1
第 1 张图
企业办公楼设计 - 2
第 2 张图
企业办公楼设计 - 3
第 3 张图
企业办公楼设计 - 4
第 4 张图
企业办公楼设计 - 5
第 5 张图
企业办公楼设计 - 6
第 6 张图
以上是部分图纸截图,有些图框没有放大后再截图,可能截图里不清晰或者看不到内容,您可以在下载后查看具体内容

温馨提示:该资料由网友于2020-2-27 13:22:07上传分享,您可以下载该资料进行学习和参考,如有侵权内容或者违法行为,请及时联系站长删除,如有疑问,您可以在暖通空调专区发帖交流相关知识。

附件2099v11ede2fc1se2w21ddfddd.rar

4.56 MB

下载  售价: 100 积分    赚积分

企业办公楼设计相关帖子

回复

使用道具 举报

您需要登录后才可以回帖 登录 | 立即注册

本版积分规则

QQ|联系我们|豆豆网 ( 苏ICP备20004746号-1 )

GMT+8, 2025-12-28 07:56 , Processed in 0.015404 second(s), 27 queries .

本站所有内容均由网友自主分享,如有侵权内容或者违法行为,请及时联系站长删除,本站将根据实际情况进行积分奖励!请查看:免责声明

快速回复 返回顶部 返回列表