豆豆网

 找回密码
 立即注册

QQ登录

只需一步,快速开始

查看: 2913|回复: 0

一份高层商业办公楼空调通风系统设计CAD施工图纸

[复制链接]

0

主题

0

帖子

776

积分

超级版主

Rank: 8Rank: 8

积分
776
发表于 2020-2-27 22:11:49 | 显示全部楼层 |阅读模式

该帖子包含附件可供参考学习和下载,您可以 搜索 更多您想要的资源


  • 附件设计说明:无
  • 建筑类别:办公
  • 建筑高度类型:高层建筑
  • 建筑地上层数:15层
  • 图纸设计深度:施工图
  • 参考图纸:11张
  • 设计年代:近代
  • 设计内容:空调,通风
  • 空调系统:空气-水系统
  • 送风方式:散流器送风
  • 项目所在地:北京

附件详情

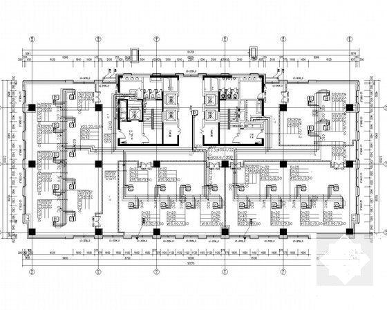
该项目为北京市一商业办公建筑,地上十五层。图纸内容包含空调水及冷媒管平面图,空调通风平面图,机房层冷媒管平面图等...


D栋十二至十五层空调水及冷媒管平面图

D栋三至十层空调通风平面图

D栋十二至十五层空调水及冷媒管平面图

D栋十二至十五层空调水及冷媒管平面图

D栋三至十层空调水及冷媒管平面图

D栋三至十层空调水及冷媒管平面图

D栋十一层空调水及冷媒管平面图

第 1 张图
第 1 张图
第 2 张图
第 2 张图
第 3 张图
第 3 张图
第 4 张图
第 4 张图
第 5 张图
第 5 张图
第 6 张图
第 6 张图
以上是部分图纸截图,有些图框没有放大后再截图,可能截图里不清晰或者看不到内容,您可以在下载后查看具体内容

温馨提示:该资料由网友于2020-2-27 22:11:49上传分享,您可以下载该资料进行学习和参考,如有侵权内容或者违法行为,请及时联系站长删除,如有疑问,您可以在商业建筑专区发帖交流相关知识。

附件2099v11edecwwdc22cs21d10f2.rar

3.42 MB

下载  售价: 100 积分    赚积分

相关帖子

回复

使用道具 举报

您需要登录后才可以回帖 登录 | 立即注册

本版积分规则

QQ|联系我们|豆豆网 ( 苏ICP备20004746号-1 )

GMT+8, 2025-12-28 05:31 , Processed in 0.037009 second(s), 27 queries .

本站所有内容均由网友自主分享,如有侵权内容或者违法行为,请及时联系站长删除,本站将根据实际情况进行积分奖励!请查看:免责声明

快速回复 返回顶部 返回列表