豆豆网

 找回密码
 立即注册

QQ登录

只需一步,快速开始

查看: 2630|回复: 0

一份9层综合办公楼多联机空调及通风排烟系统设计CAD施工图纸

[复制链接]

0

主题

0

帖子

1075

积分

超级版主

Rank: 8Rank: 8

积分
1075
发表于 2020-2-27 16:34:23 | 显示全部楼层 |阅读模式

该帖子包含附件可供参考学习和下载,您可以 搜索 更多您想要的资源


  • 附件设计说明:有
  • 建筑类别:办公
  • 建筑高度类型:高层建筑
  • 建筑设计面积:16082.14平方米
  • 建筑地上层数:9层
  • 图纸设计深度:施工图
  • 参考图纸:24张
  • 设计年代:近代
  • 设计内容:空调,通风,防排烟
  • 冷热源:空气调节器
  • 空调系统:制冷剂系统
  • 送风方式:散流器送风
  • 项目所在地:安徽

附件详情

一、项目概要:
项目位于安徽省,为一综合办公楼,总建筑面积16082.14m2,建筑高度36.0m,地上9层,裙房2层...
二、冷热源:
空调系统采用多联机系统,冷暖两用型...
三、空调系统:
多联机空调系统冷媒供液...
四、通风排烟系统:
1.汽车库排风按稀释浓度法计算排风量,机械排风按6次/h,由车库入口自然进风。
2.柴油发电机房平时机械排风按4次/h,储油间机械排风按6次/h,由进风百叶自然进风。
3.地上各层内走道及一层中庭开窗面积均满足自然排烟条件,采用自然排烟的方式...

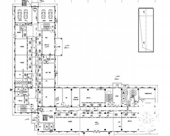
图纸共24张。

通风平面图

空调平面图

冷凝水立管系统图

空调系统图

综合办公楼多联机 - 1
第 1 张图
综合办公楼多联机 - 2
第 2 张图
综合办公楼多联机 - 3
第 3 张图
综合办公楼多联机 - 4
第 4 张图
综合办公楼多联机 - 5
第 5 张图
以上是部分图纸截图,有些图框没有放大后再截图,可能截图里不清晰或者看不到内容,您可以在下载后查看具体内容

温馨提示:该资料由网友于2020-2-27 16:34:23上传分享,您可以下载该资料进行学习和参考,如有侵权内容或者违法行为,请及时联系站长删除,如有疑问,您可以在暖通空调专区发帖交流相关知识。

附件2099v11ede2dsdc0cefs02defc.rar

2.07 MB

下载  售价: 100 积分    赚积分

综合办公楼多联机相关帖子

回复

使用道具 举报

您需要登录后才可以回帖 登录 | 立即注册

本版积分规则

QQ|联系我们|豆豆网 ( 苏ICP备20004746号-1 )

GMT+8, 2025-12-28 07:45 , Processed in 0.016631 second(s), 27 queries .

本站所有内容均由网友自主分享,如有侵权内容或者违法行为,请及时联系站长删除,本站将根据实际情况进行积分奖励!请查看:免责声明

快速回复 返回顶部 返回列表