豆豆网

 找回密码
 立即注册

QQ登录

只需一步,快速开始

查看: 2523|回复: 0

一份办公楼VRV舒适性中央空调系统设计CAD施工图纸

[复制链接]

0

主题

0

帖子

1075

积分

超级版主

Rank: 8Rank: 8

积分
1075
发表于 2020-2-27 17:02:41 | 显示全部楼层 |阅读模式

该帖子包含附件可供参考学习和下载,您可以 搜索 更多您想要的资源


  • 附件设计说明:有
  • 建筑类别:办公
  • 建筑高度类型:高层建筑
  • 图纸设计深度:施工图
  • 参考图纸:11张
  • 设计内容:空调,冷热源
  • 项目所在地:浙江

附件详情

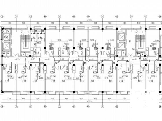
一、项目概要:
该项目空调项目是办公楼十~十二层总建筑面积3000m2,每层建筑高度3.5米。该资料包括办公用房、休息室、会议室、活动室、接待室的VRV中央空调系统...
二、冷热源:
空调源设计选用FDCA400HKXE4BR*2VRV空调系统,共两台...
三、空调系统:
1.舒适性中央VRV空调采用变频风冷热泵型分体中央空调方式。
2.该项目空调面积为2800m2,总冷负荷为256KW。空调系统分为三个系统...

图纸共11张。

空调 平面布置图

空调系统图

屋顶层空调平面布置图

vrv中央空调系统 - 1
第 1 张图
vrv中央空调系统 - 2
第 2 张图
vrv中央空调系统 - 3
第 3 张图
vrv中央空调系统 - 4
第 4 张图
以上是部分图纸截图,有些图框没有放大后再截图,可能截图里不清晰或者看不到内容,您可以在下载后查看具体内容

温馨提示:该资料由网友于2020-2-27 17:02:41上传分享,您可以下载该资料进行学习和参考,如有侵权内容或者违法行为,请及时联系站长删除,如有疑问,您可以在暖通空调专区发帖交流相关知识。

附件2099v11ede2sc1e10cddc0c21c.rar

2.48 MB

下载  售价: 100 积分    赚积分

vrv中央空调系统相关帖子

回复

使用道具 举报

您需要登录后才可以回帖 登录 | 立即注册

本版积分规则

QQ|联系我们|豆豆网 ( 苏ICP备20004746号-1 )

GMT+8, 2025-12-22 16:03 , Processed in 0.017340 second(s), 27 queries .

本站所有内容均由网友自主分享,如有侵权内容或者违法行为,请及时联系站长删除,本站将根据实际情况进行积分奖励!请查看:免责声明

快速回复 返回顶部 返回列表