豆豆网

 找回密码
 立即注册

QQ登录

只需一步,快速开始

查看: 1648|回复: 0

多栋中高层住宅楼建筑采暖通风系统CAD施工图纸

[复制链接]

0

主题

0

帖子

1322

积分

超级版主

Rank: 8Rank: 8

积分
1322
发表于 2020-2-28 19:25:50 | 显示全部楼层 |阅读模式

该帖子包含附件可供参考学习和下载,您可以 搜索 更多您想要的资源


  • 附件设计说明:有
  • 建筑类别:住宅
  • 建筑高度类型:多层建筑
  • 建筑设计面积:4309.53平方米
  • 建筑地上层数:8层
  • 图纸设计深度:施工图
  • 参考图纸:41张
  • 设计年代:近代
  • 设计内容:通风,采暖
  • 冷热源:市政热网
  • 采暖系统:热水辐射
  • 水系统:同程式,异程式
  • 送风方式:散流器送风
  • 项目所在地:吉林

附件详情

  • 设计施工说明
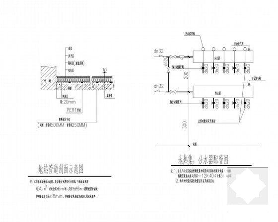
  • 热力入口平面详图
  • 标准层户内地热盘管平面图
  • 采暖平面图
  • 地下室采暖干管平面图
  • 采暖通风平面图
  • 采暖系统图
  • 卫生间通风剖面示意图
  • 地热管道剖面示意图
  • 地热集,分水器配管图
  • ......

附件详情

一、项目概要:
项目位于吉林省,为一中高层住宅建筑,单体建筑面积4309.53m2,层数为8层,建筑高度为23.50m......
二、冷热源:
采暖热源取自小区换热站,热媒为60~50°C热水,连续采暖......
三、采暖系统:
1.住宅部分采用地热采暖,户内地面散热:阳台,厨房,卫生间地面以地砖计算;卧室、餐厅、起居室地面以地板计算。
2.采暖系统形式:采暖干管为同程式系统,管道井内采暖立管为下供下回异程式。
3.住宅系统采用分户热计量。热量表按80%的设计流量作为热量表的额定流量......
四、通风系统:
电梯机房、卫生间设置机械排风系统......

图纸共41张。


采暖平面图

采暖干管平面图

采暖系统图

分集水器大样图

采暖通风平面图

中高层住宅 - 1
第 1 张图
中高层住宅 - 2
第 2 张图
中高层住宅 - 3
第 3 张图
中高层住宅 - 4
第 4 张图
中高层住宅 - 5
第 5 张图
中高层住宅 - 6
第 6 张图
以上是部分图纸截图,有些图框没有放大后再截图,可能截图里不清晰或者看不到内容,您可以在下载后查看具体内容

温馨提示:该资料由网友于2020-2-28 19:25:50上传分享,您可以下载该资料进行学习和参考,如有侵权内容或者违法行为,请及时联系站长删除,如有疑问,您可以在居住建筑专区发帖交流相关知识。

附件2099v11ede2dcwcs0211dc12ed.rar

6.86 MB

下载  售价: 100 积分    赚积分

中高层住宅相关帖子

回复

使用道具 举报

您需要登录后才可以回帖 登录 | 立即注册

本版积分规则

QQ|联系我们|豆豆网 ( 苏ICP备20004746号-1 )

GMT+8, 2025-12-21 01:14 , Processed in 0.016883 second(s), 27 queries .

本站所有内容均由网友自主分享,如有侵权内容或者违法行为,请及时联系站长删除,本站将根据实际情况进行积分奖励!请查看:免责声明

快速回复 返回顶部 返回列表