豆豆网

 找回密码
 立即注册

QQ登录

只需一步,快速开始

查看: 2727|回复: 0

二类办公楼空调采暖通风及防排烟系统设计CAD施工图纸(风机盘管接管)

[复制链接]

0

主题

0

帖子

1351

积分

超级版主

Rank: 8Rank: 8

积分
1351
发表于 2020-2-28 21:15:20 | 显示全部楼层 |阅读模式

该帖子包含附件可供参考学习和下载,您可以 搜索 更多您想要的资源


  • 附件设计说明:有
  • 建筑类别:办公
  • 建筑高度类型:多层建筑
  • 建筑设计面积:16619.25平方米
  • 建筑地上层数:7层
  • 建筑地下层数:1层
  • 图纸设计深度:施工图
  • 参考图纸:25张
  • 设计年代:近代
  • 设计内容:空调,通风,采暖,防排烟,冷热源
  • 空调系统:空气-水系统
  • 采暖系统:散热器供暖,热水辐射
  • 送风方式:散流器送风
  • 节点大样:风机盘管
  • 项目所在地:黑龙江

附件详情

  • 图例
  • 设计及施工说明
  • 主要设备表
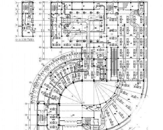
  • 空调水系统平面图
  • 空调风平面图
  • 空调风系统平面图
  • 采暖平面图
  • 采暖系统图
  • 空调水系统图
  • 风机盘管接管示意图
  • ...

附件详情

一、项目概要:
项目位于黑龙江省,地下一层,地上七层,建筑高度为36.700m,总建筑面积约为16619.25m 2...
二、冷热源:
1.冷源:由地下一层制冷机房提供。夏季冷冻水供回水温度为7/12°C。
2.热源:由地下一层换热站内板式换热器提供。空调及地热采暖热水供回水温度为55/45°C...
三、空调系统:
空调系统采用风机盘管加新风系统...
四、通风系统:
公共卫生间通风采用天花板型换气扇,换气次数为10次/小时...
五、采暖系统:
展厅、大厅、阅览室采用地热采暖,预留分集水器位置...
六、防排烟系统:
1.长度超过20m内走道、地下一层面积超过100m2的地上无窗房间设多叶排烟口排烟。
2.防烟楼梯间及消防电梯前室的加压送风系统设计...

图纸共25张。

空调水系统平面图

采暖平面图

空调水系统图

采暖系统图

办公楼采暖防排烟 - 1
第 1 张图
办公楼采暖防排烟 - 2
第 2 张图
办公楼采暖防排烟 - 3
第 3 张图
办公楼采暖防排烟 - 4
第 4 张图
办公楼采暖防排烟 - 5
第 5 张图
以上是部分图纸截图,有些图框没有放大后再截图,可能截图里不清晰或者看不到内容,您可以在下载后查看具体内容

温馨提示:该资料由网友于2020-2-28 21:15:20上传分享,您可以下载该资料进行学习和参考,如有侵权内容或者违法行为,请及时联系站长删除,如有疑问,您可以在暖通空调专区发帖交流相关知识。

附件2099v11ede2ddcccewc0cdcsds.rar

3.07 MB

下载  售价: 100 积分    赚积分

办公楼采暖防排烟相关帖子

回复

使用道具 举报

您需要登录后才可以回帖 登录 | 立即注册

本版积分规则

QQ|联系我们|豆豆网 ( 苏ICP备20004746号-1 )

GMT+8, 2025-12-16 18:27 , Processed in 0.017167 second(s), 27 queries .

本站所有内容均由网友自主分享,如有侵权内容或者违法行为,请及时联系站长删除,本站将根据实际情况进行积分奖励!请查看:免责声明

快速回复 返回顶部 返回列表