豆豆网

 找回密码
 立即注册

QQ登录

只需一步,快速开始

查看: 2874|回复: 0

多层住宅商业楼采暖通风排烟系统设计CAD施工图纸(负荷计算)

[复制链接]

0

主题

0

帖子

1111

积分

超级版主

Rank: 8Rank: 8

积分
1111
发表于 2020-2-28 21:16:08 | 显示全部楼层 |阅读模式

该帖子包含附件可供参考学习和下载,您可以 搜索 更多您想要的资源


  • 附件设计说明:有
  • 建筑类别:住宅,商业
  • 建筑高度类型:多层建筑
  • 建筑设计面积:92632.02平方米
  • 图纸设计深度:施工图
  • 设计年代:近代
  • 设计内容:通风,采暖,防排烟,冷热源
  • 采暖系统:散热器供暖
  • 项目所在地:山东

附件详情

一、项目概要:
总建筑面积:92632.02m ,其中地上建筑面积80988.06m ,地下建筑面积11643.96m ...
二、冷热源:
采暖热媒:该项目所有住宅部分均采用地板辐射供暖系统,采暖热媒为低温热水,供水温度为50°C,回水温度为40°C...
三、采暖系统:
1.商业网点采暖系统形式:立管采用双管异程式,每层干管系统采用双管上供上回同程式。
2.住宅低温热水地板辐射供暖系统,户内客厅处设置红外线温度感应面板。
3.商业网点散热器供暖系统...
四、通风排烟系统:
1.住宅厨房、卫生间使用子母变压式风道,风道带防火型导流式金属止回排气阀,排油烟机、多功能通风器应选用带止回阀产品。
2.商业网点卫生间均采用机械排风系统排风,通过排气扇将室内污浊空气排至室外,并通过门窗缝隙自然补风,排风量按10次/h计算......

图纸共14张。

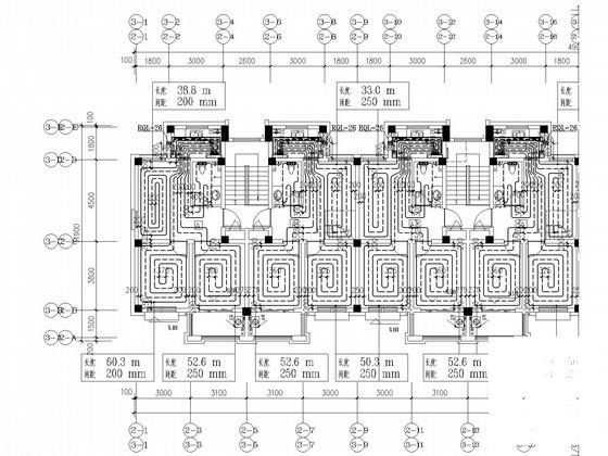
采暖平面图

分集水器详图

住宅采暖壁挂炉原理图

采暖负荷计算 - 1
第 1 张图
采暖负荷计算 - 2
第 2 张图
采暖负荷计算 - 3
第 3 张图
采暖负荷计算 - 4
第 4 张图
以上是部分图纸截图,有些图框没有放大后再截图,可能截图里不清晰或者看不到内容,您可以在下载后查看具体内容

温馨提示:该资料由网友于2020-2-28 21:16:08上传分享,您可以下载该资料进行学习和参考,如有侵权内容或者违法行为,请及时联系站长删除,如有疑问,您可以在商业建筑专区发帖交流相关知识。

附件2099v11ede2d0ff0d2edf00ff0.rar

4.42 MB

下载  售价: 100 积分    赚积分

采暖负荷计算相关帖子

回复

使用道具 举报

您需要登录后才可以回帖 登录 | 立即注册

本版积分规则

QQ|联系我们|豆豆网 ( 苏ICP备20004746号-1 )

GMT+8, 2025-12-17 21:03 , Processed in 0.063993 second(s), 27 queries .

本站所有内容均由网友自主分享,如有侵权内容或者违法行为,请及时联系站长删除,本站将根据实际情况进行积分奖励!请查看:免责声明

快速回复 返回顶部 返回列表