豆豆网

 找回密码
 立即注册

QQ登录

只需一步,快速开始

查看: 2725|回复: 0

一份超高层酒店空调通风设计CAD施工图纸(动力、人防设计)(柴油发电机房)

[复制链接]

0

主题

0

帖子

1832

积分

超级版主

Rank: 8Rank: 8

积分
1832
发表于 2020-2-28 22:12:04 | 显示全部楼层 |阅读模式

该帖子包含附件可供参考学习和下载,您可以 搜索 更多您想要的资源


  • 附件设计说明:有
  • 建筑类别:办公,酒店
  • 建筑设计面积:54834.39平方米
  • 建筑地上层数:35层
  • 建筑地下层数:3层
  • 图纸设计深度:深化设计图
  • 参考图纸:52张
  • 设计年代:近代
  • 设计内容:空调,通风,防排烟,冷热源,动力,人防
  • 冷热源:市政热网,电动压缩式冷水机组
  • 空调系统:全空气系统,空气-水系统
  • 水系统:单式泵,定流量
  • 节点大样:冷却塔,管道支吊架
  • 特殊系统:燃油系统
  • 项目所在地:河南

附件详情

  • 资料目录
  • 主要设备材料表
  • 设计说明
  • 图例
  • 冷冻、冷却系统原理图
  • 空调水系统原理图
  • 送、排风、排烟系统原理图
  • 人防送、排风原理图
  • 人防剖面图
  • 人防通风平面图
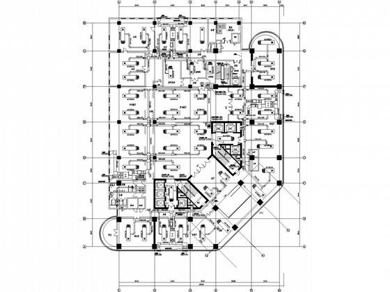
  • 地下层通风平面图
  • 通风空调平面图
  • 屋顶通风平面图
  • 水管平面图
  • 机房平面、剖面图
  • 机房基础平面、剖面图
  • 柴油发电机房燃油部分设备、管道平面、系统图
  • 锅炉房平面图
  • 锅炉房基础平面图
  • 锅炉系统原理图
  • 锅炉房剖面图

附件详情

稿件为河南郑州某国际中心空调通风设计全套施工图纸;该建筑为现代化综合性酒店,根据酒店功能性质的不同,设计成两大部分:四星级客房酒店及公寓式办公酒店。总建筑面积54834.39平方米,地上35层,地下3层,楼高120米。
设计内容:该大楼的通风、空调、防排烟设计,人防设计以及制冷机房设计,锅炉房设计,柴油发电机房动力设计等。

,图纸共52张。


冷冻、冷却系统原理图

机房平面图

公寓冷却塔接管示意图

锅炉系统原理图

风机剖面图

空调系统原理图

冷却塔布置平面

排风、排烟系统示意图

人防剖面图

人防送风原理图

水管平面图

地下一层通风平面图

第 1 张图
第 1 张图
第 2 张图
第 2 张图
第 3 张图
第 3 张图
第 4 张图
第 4 张图
第 5 张图
第 5 张图
第 6 张图
第 6 张图
以上是部分图纸截图,有些图框没有放大后再截图,可能截图里不清晰或者看不到内容,您可以在下载后查看具体内容

温馨提示:该资料由网友于2020-2-28 22:12:04上传分享,您可以下载该资料进行学习和参考,如有侵权内容或者违法行为,请及时联系站长删除,如有疑问,您可以在酒店建筑专区发帖交流相关知识。

附件2099v11ede2efw0010sc002e0e.rar

4.78 MB

下载  售价: 100 积分    赚积分

相关帖子

回复

使用道具 举报

您需要登录后才可以回帖 登录 | 立即注册

本版积分规则

QQ|联系我们|豆豆网 ( 苏ICP备20004746号-1 )

GMT+8, 2025-12-27 16:12 , Processed in 0.017446 second(s), 27 queries .

本站所有内容均由网友自主分享,如有侵权内容或者违法行为,请及时联系站长删除,本站将根据实际情况进行积分奖励!请查看:免责声明

快速回复 返回顶部 返回列表