豆豆网

 找回密码
 立即注册

QQ登录

只需一步,快速开始

查看: 1654|回复: 0

一份筒仓水泥磨厂房结构设计方案CAD图纸

[复制链接]

0

主题

0

帖子

960

积分

超级版主

Rank: 8Rank: 8

积分
960
发表于 2020-2-29 22:47:23 | 显示全部楼层 |阅读模式

该帖子包含附件可供参考学习和下载,您可以 搜索 更多您想要的资源


  • 建筑类别:工业建筑
  • 建筑高度类型:单层建筑
  • 厂房建筑高度类型:单层厂房
  • 建筑地上层数:1层
  • 图纸设计深度:施工图
  • 民用建筑设计使用年限:25年
  • 建筑设计结构形式:钢筋混凝土结构,钢结构
  • 钢筋混凝土结构:框架
  • 钢结构:其他结构
  • 特种结构:筒仓
  • 基础形式 :独立基础
  • 结构安全等级:二级
  • 地基基础设计等级:乙级
  • 抗震设防烈度:6度抗震
  • 风压:0.30kN/平方米
  • 雪压:0.40kN/平方米
  • 参考图纸:26张
  • 设计年代:近代

附件详情

某筒仓水泥磨厂房结构设计图
该资料为:某筒仓水泥磨厂房结构设计图
该资料包含:
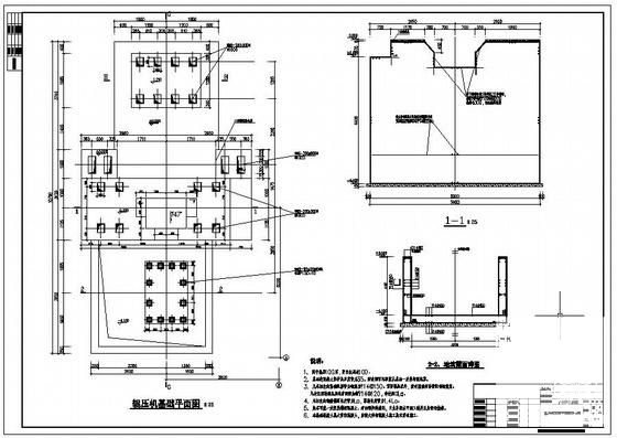
结构设计总说明、钢 结构设计说明 、基础 平面布置图 、独立基础详图、库基础详图、地坑截面详图、磨机基础详图、磨机基础平面图、辊压机基础详图、辊压机基础平面图及详图、框架柱定位及配筋图、库底柱、护壁柱详图、库壁洞口配筋详图、库底板详图、平面结构图、平面的预留孔、预埋件布置图、平面及斜廊、梁配筋图、 楼梯详图 、粉煤灰输送栈桥钢结构布置图、粉煤灰输送栈桥钢结构详图、新旧水泥磨间输送栈桥钢结构详图共26张图纸。

第 1 张图
第 1 张图
第 2 张图
第 2 张图
第 3 张图
第 3 张图
第 4 张图
第 4 张图
以上是部分图纸截图,有些图框没有放大后再截图,可能截图里不清晰或者看不到内容,您可以在下载后查看具体内容

温馨提示:该资料由网友于2020-2-29 22:47:23上传分享,您可以下载该资料进行学习和参考,如有侵权内容或者违法行为,请及时联系站长删除,如有疑问,您可以在结构设计专区发帖交流相关知识。

附件2099v11edf2f1wswcwfe2e20ce.rar

1.19 MB

下载  售价: 100 积分    赚积分

相关帖子

回复

使用道具 举报

您需要登录后才可以回帖 登录 | 立即注册

本版积分规则

QQ|联系我们|豆豆网 ( 苏ICP备20004746号-1 )

GMT+8, 2025-11-6 13:09 , Processed in 0.042061 second(s), 27 queries .

本站所有内容均由网友自主分享,如有侵权内容或者违法行为,请及时联系站长删除,本站将根据实际情况进行积分奖励!请查看:免责声明

快速回复 返回顶部 返回列表